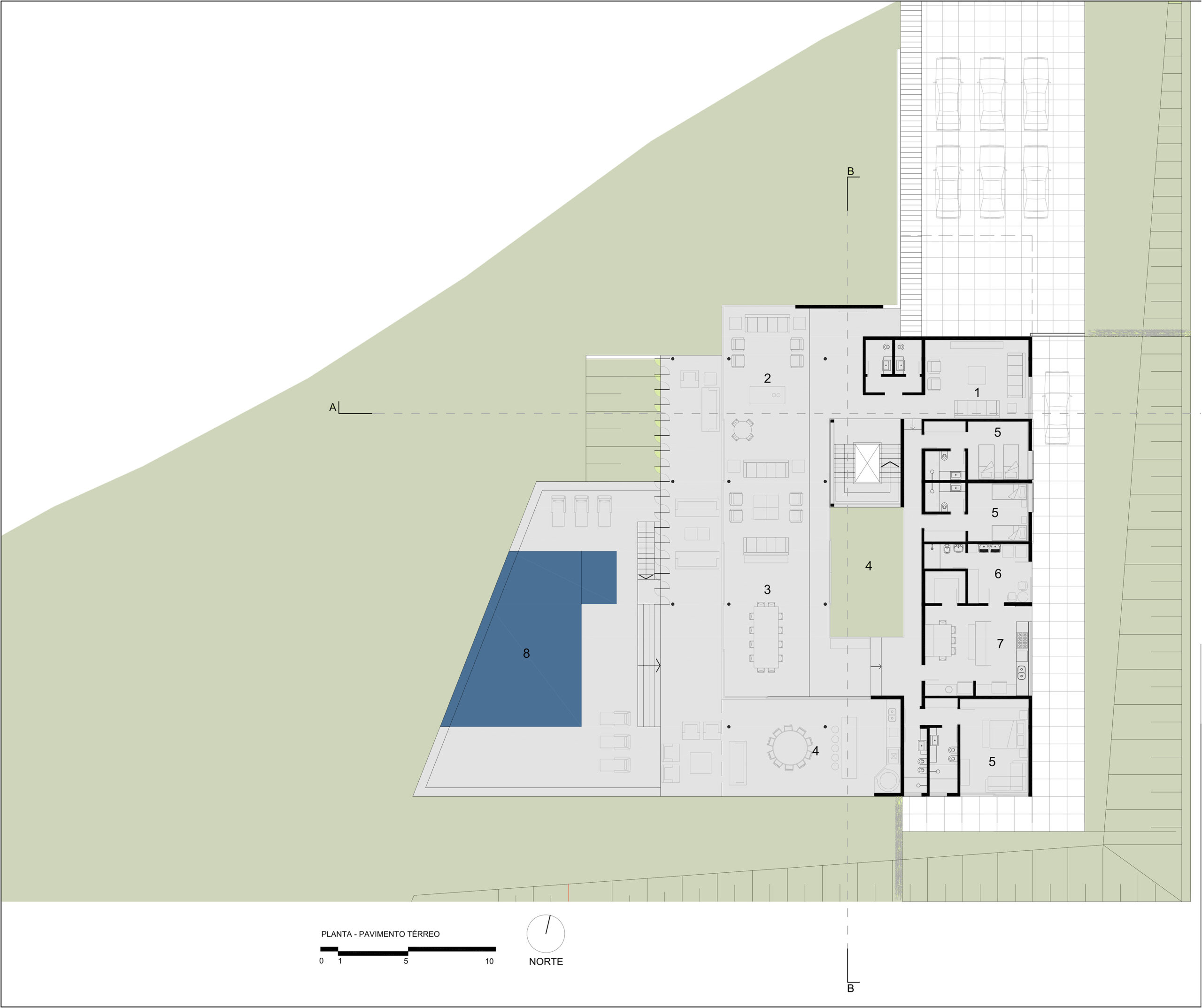
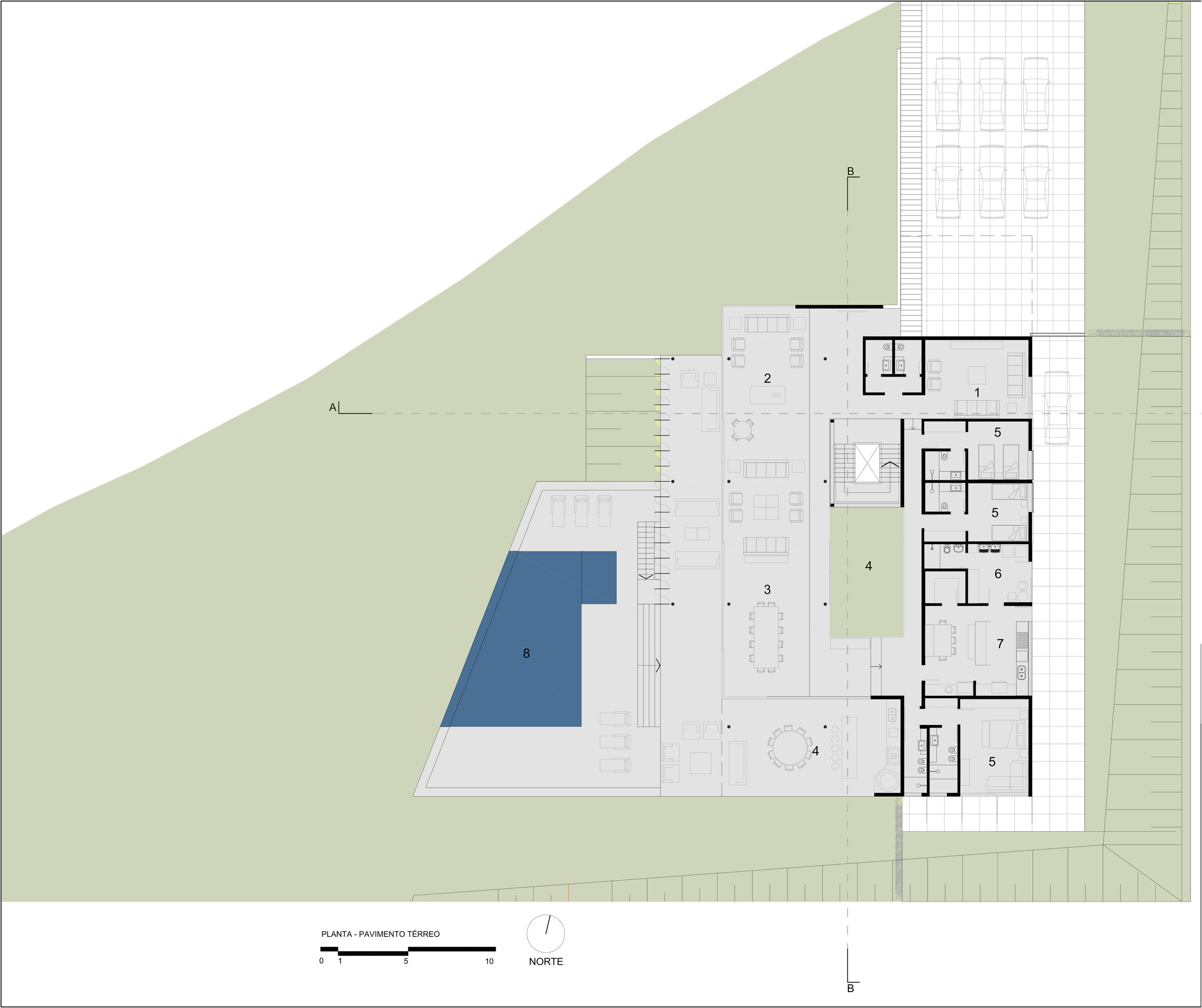
CPB HOUSE

2015

LOCATION
Porto Feliz, SP-Brasil

AREA
915,00m²

TEAM
Mario Biselli, Artur Katchborian, Cassia Lopes Moral, Ana Carolina Ferreira Mendes, Alexandre Rennhard Biselli, Marcos Bresser, Gabriel Menezes

RENDERS
BK

Next project →