LPMV HOUSE

2003

The single volume is formed by two juxtaposed blocks that oppose each other in their relations with different landscapes. It represents, in the traditional construction, the rooting of the mountain and, in the front part, with semi-industrialized elements and nautical references, the displacement towards the sea.

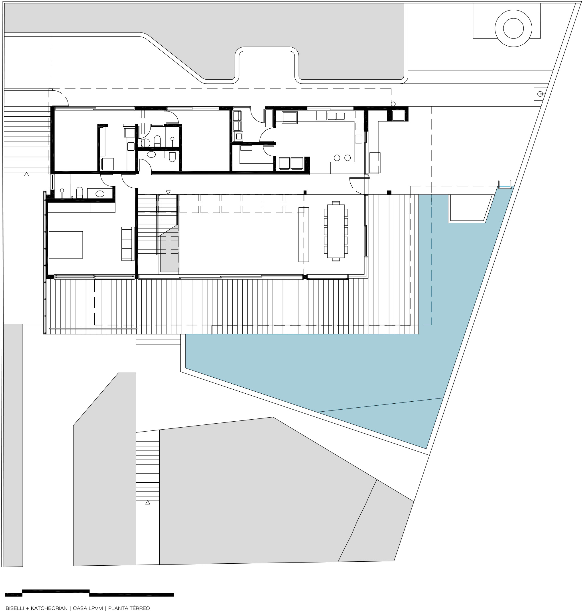
At first glance, the two blocks that make up the house seem to house served spaces and servers, as in a classic bi-nuclear pavilion: on one side, facing the sea, there would be living rooms and bedrooms; on the other, facing the mountain, the server spaces.

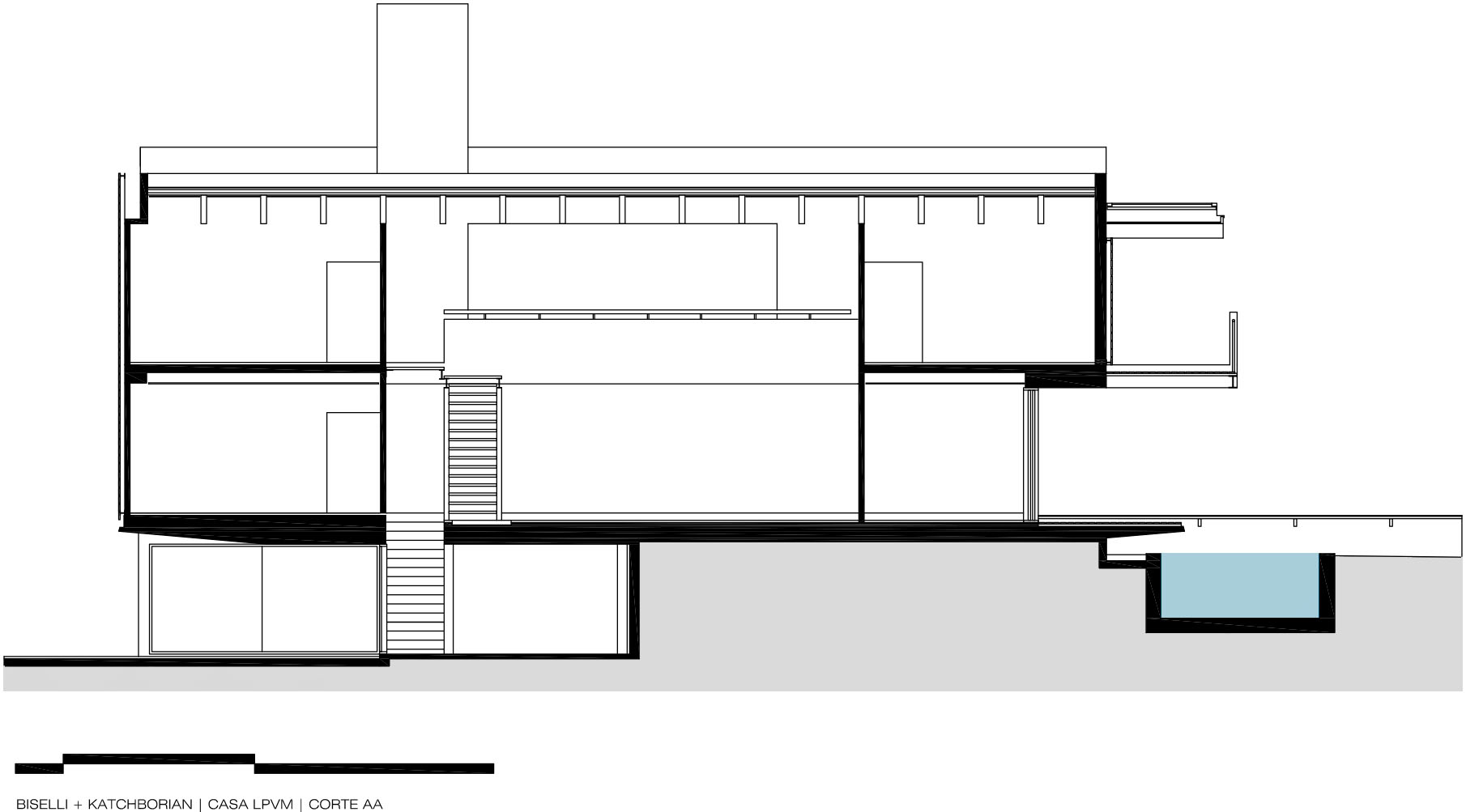
Some elements induce - erroneously, anticipate - this reading. There is an open and light volume, with wood, steel and glass, facing the sea. To the mountain there is a more hermetic, heavy block with a white-painted masonry closure. Also collaborating with this subdivision is the roof, which at the front is light, structured in metal and wood, with a large eaves whose ceiling is formed by MDF boards painted white, while at the back it is flat, hidden by a platband, with concrete eaves.

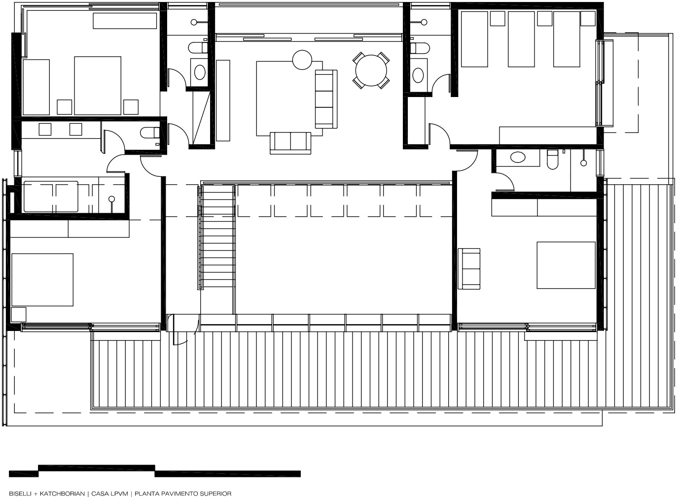
The organization of the internal space already partially dismantles this initial analysis. If on the ground floor it is almost valid, on the upper floor the bedrooms do not have the classic modernist sequence, with equal rooms side by side. In reality, there are bedrooms on two floors and they are organized according to the view, the orientation and a bi-nuclear approach adopted by the architects in other residences - which consists of grouping them two by two, on the upper floor, in almost symmetrical nuclei, divided by an intimate living area. This, in turn, is interconnected to the main living area by the double height ceiling.

In the space formed between these rooms on two levels, the nucleus of the house is concentrated, where Mario Biselli and Artur Katchborian perhaps approach the São Paulo school. In this case, the large environment created by the architects found the right environment: the northeast-southwest axis, transversal to the pavilion, allows transparency through the line between the large frame at the top of the room and the rear balcony, next to the intimate room. On one side, the sea; on the other, the mountain.

It is precisely in the relationship of the building with the sea and the mountain that the vigor of the project is concentrated. "On one side the building rests on the ground, while the other floats," says Biselli. The counterpoint between the two volumes begins to make sense: if the issue is not internal (server and served spaces), it can only be external. The strength of the proposal lies in the relationship with the place, both in the rootedness - the house incorporates the stones and trees of the land (one of them springs from the pool) - and in the metaphor with which it dialogues with the natural environment.

The elements of the block in the background seem to cling to the earth (or the continent, the mountain and the forest): the openings, the white and the concrete flaps have a Luso-Brazilian air, a bridge between Álvaro Siza and Joaquim Guedes. This volume metaphorizes the conventional-refined way of building on this land, with masonry and concrete, and in an artisanal way.
The front block, in turn, seems to want to sail towards the sea, in search of other lands. Its construction, semi-industrialized, is almost an assembly: steel, wood and glass. Some elements, such as the railing, reinforce the difference between the volumes: at the front, instead of the masonry painted white, it is made of metal and wood. Reminiscent of Corbusier, the details have nautical refinements.

The very sophisticated movable frames in the living area are made of aluminum in a wooden upright. "I learned this from Percival Deimann," Biselli reveals. The fixed glasses, which illuminate the upper part of the room, have wide uprights that work as vertical louvers. The light and transparent block completes the metaphor, with Biselli and Katchborian's search for the new, the contemporary, the international. To do so, they are inspired by other lands, far from overseas. The roof would be the large sail and the balcony that surrounds the house, and from where you can see the sea, the bow of the vessel.

On the dividing line between the volumes that represent these two worlds (modern/contemporary, land/sea) are two elements that create a wall-diaphragm of light and affection: the zenith opening, which refers to the São Paulo school, and the red sandstone covering, the authors' fetish material.
By SERAPIÃO, Fernando.

Read more

LOCATION
São Sebastião, SP–Brasil

AREA
693,00m²

TEAM
Mario Biselli, Artur Katchborian, Cristiana Gonçalves Pereira Rodrigues, Natália Celedon

STRUCTURE AND INSTALLATIONS
Interplanus Engineering

LANDSCAPING
Natália Celedon

LIGHTING
Scene Light Design

CONSTRUCTION
Fazer Engenharia – Fabiano Polloni

PHOTOS
Nelson Kon

Project download Next project →