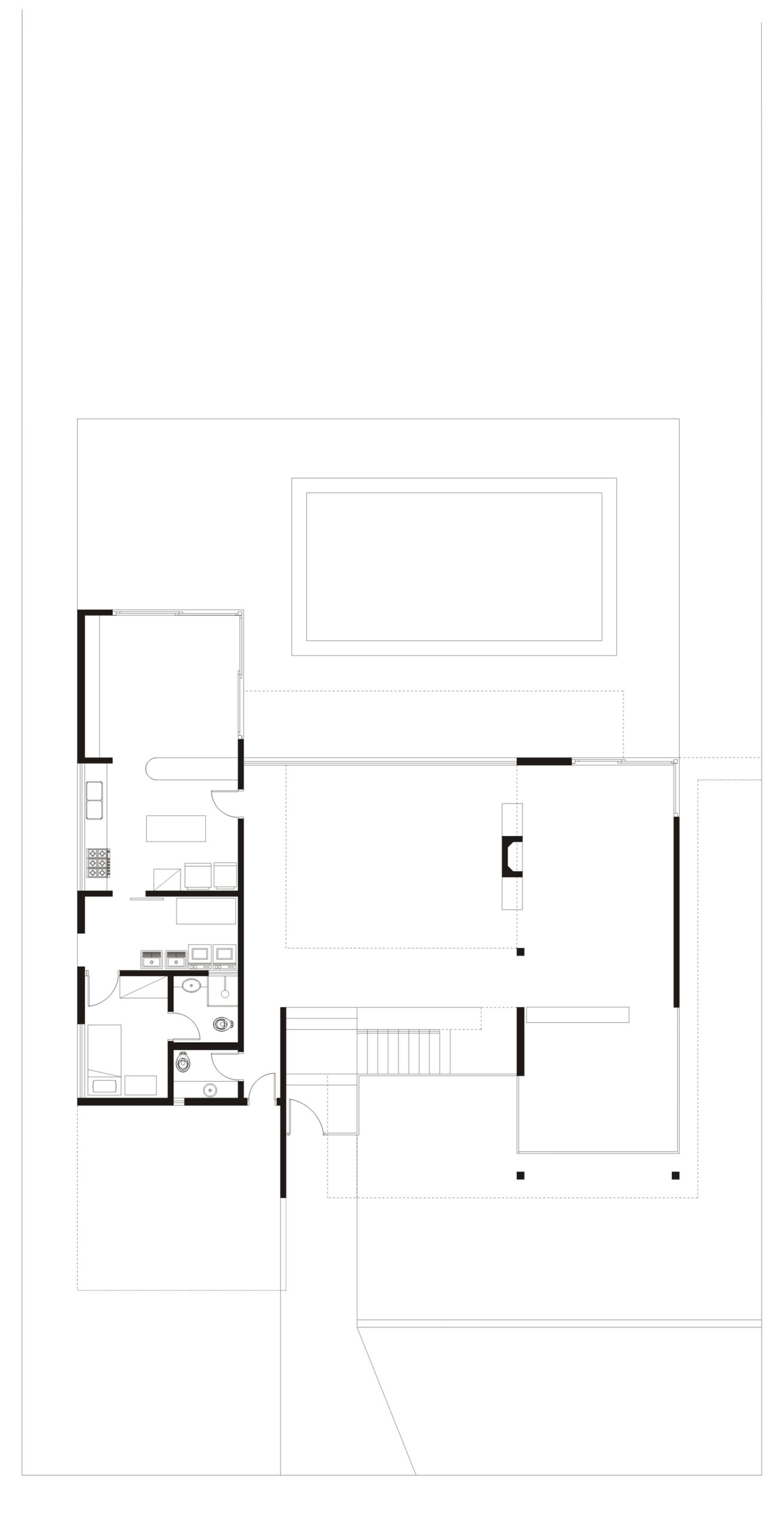
RP HOUSE

2001

LOCATION
Cotia, SP-Brasil

AREA
410,00m²

TEAM
Mario Biselli, Artur Katchborian, Cristiana Rodrigues, Daniel Corsi, Carolina Pudenzi

PHOTOS
Nelson Kon

Next project →