CARITAS SCHOOL

2005

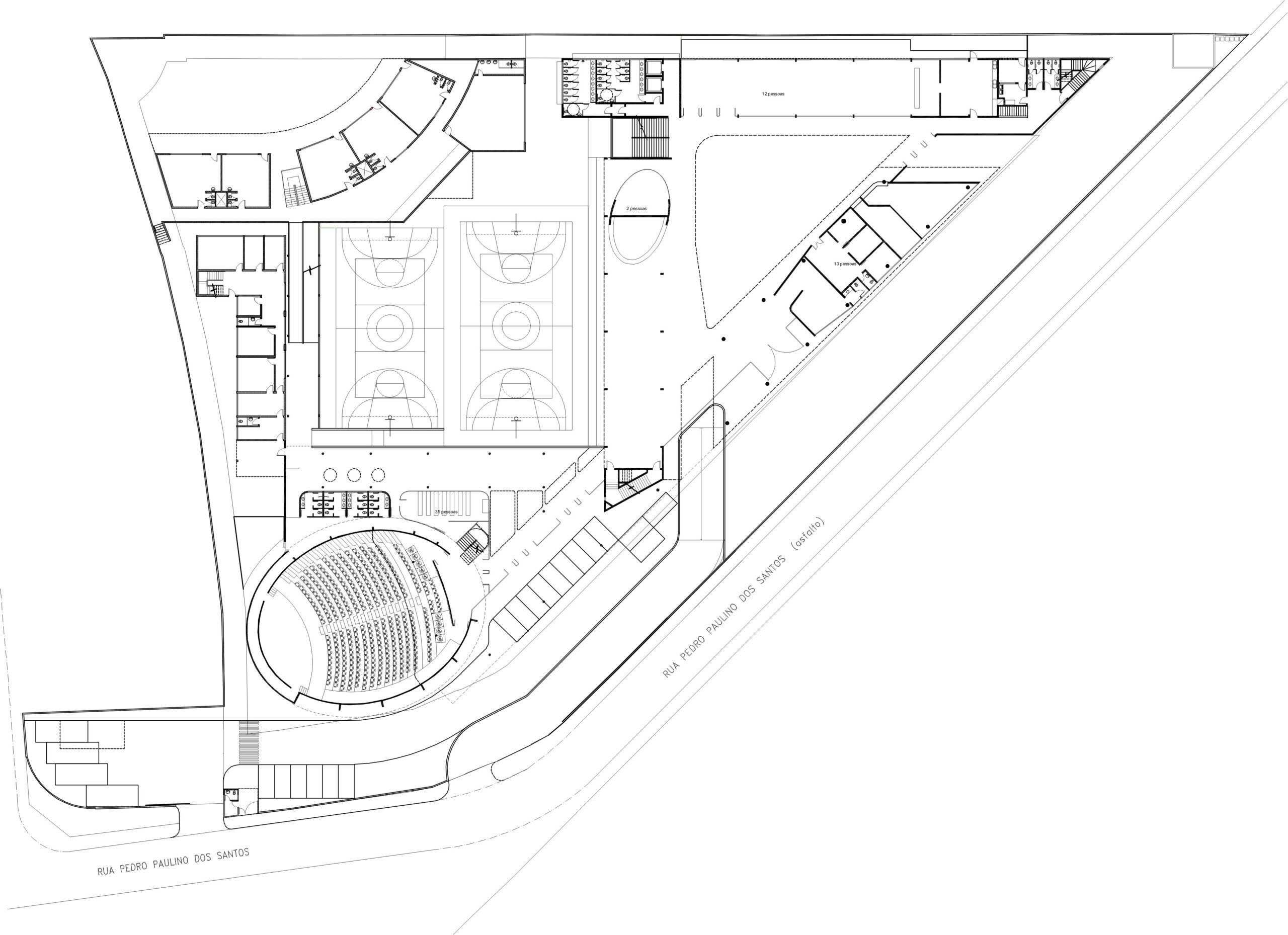
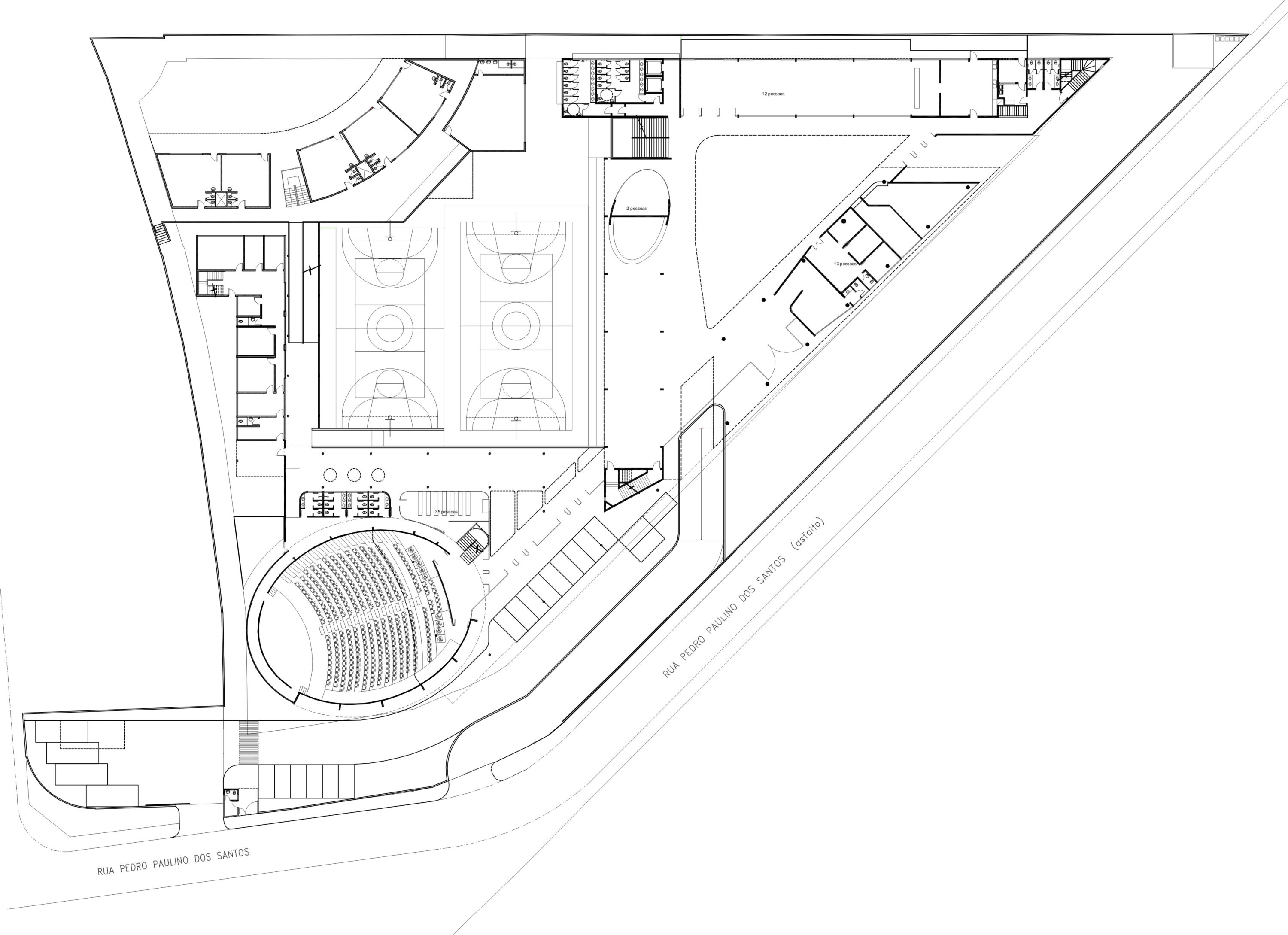
This school, which is an expansion of the institution run by the Congregation of the Sisters of Charity of Japan, is located on the southwestern outskirts of São Paulo. The existing building and the triangular configuration of the land determine the strategy of occupation of the territory.

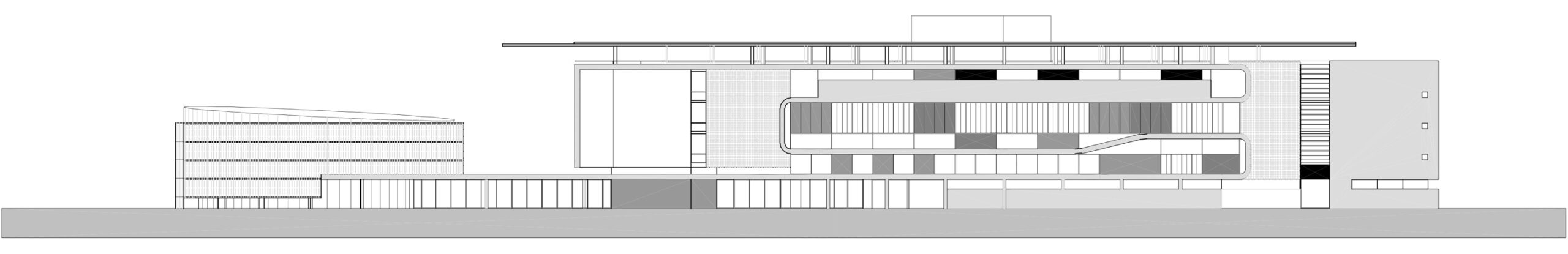
Three five-floor slats associated and unified by a light metal roof define the volume of the main body of the set. The configuration generates a central covered patio, delimited in its entire height by corridors-balconies. On the front blade, more than 50 m long, are located the library, laboratories, video rooms and administrative and pedagogical areas. This diversity of use allows working with freedom, differences in ceiling height, full and empty and a differentiated frame. The two internal slats receive the classrooms on the upper floors, thus adopting a more homogeneous and discreet resolution in the openings. On the ground floor, on the blade parallel to the boundary of the lot, are the cafeteria and the kitchen, while the other blade on pillars functions as a transition between the building and the sports courts.
A continuous slab – which rises next to the volume that incorporates the auditorium and the chapel – is originally configured as a marquee and winds through all levels of the front blade. With its rounded folds, it gives a dynamic that integrates the set and instigates the gaze.

The vertices of the triangle are occupied by the horizontal connections and vertical circulations. The core of sanitary facilities, associated with the elevators, is strategically located at the internal apex.

Read more

LOCATION
São Paulo, SP – Brasil

AREA
9.360,00 m²

TEAM
Mario Biselli, Artur Katchborian, Cristiana Rodrigues, Natália Celedon, Paula Cavaggione, Daniel Corsi, Ana Carolina Pudenzi

LANDSCAPING
Natália Celedon

LIGHTING, ELECTRICAL, HYDRAULIC, FOUNDATIONS AND STRUCTURE
Interplanus

CONSTRUCTION
Hoss

PHOTOS
Nelson Kon

Project download Next project →