PINHEIROS SPORTS CLUB - CBS

2017

WELLNESS AND HEALTH CENTER
The proposal for the creation of a new equipment aimed at well-being and health (CBS) and requalification of the Cultural and Recreational Center (CCR) of Esporte Clube Pinheiros arose from a restricted competition for preliminary architectural studies, promoted by the club in April 2017.

Five invited firms — Andrade Morettin, Biselli Katchborian, SIAA, MMBB and Paulo Bruna — were responsible for developing solutions that integrated these two fronts of intervention.

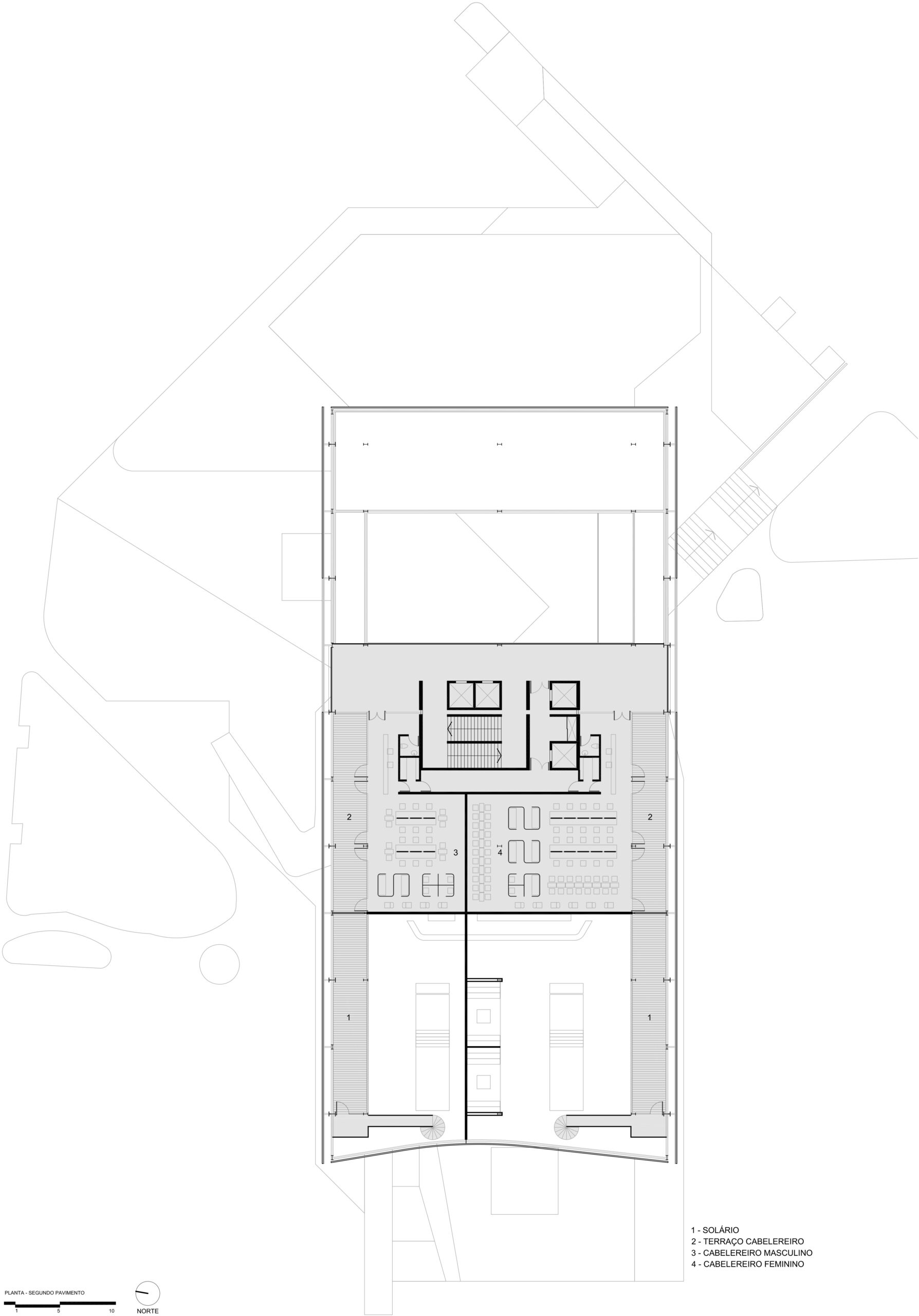
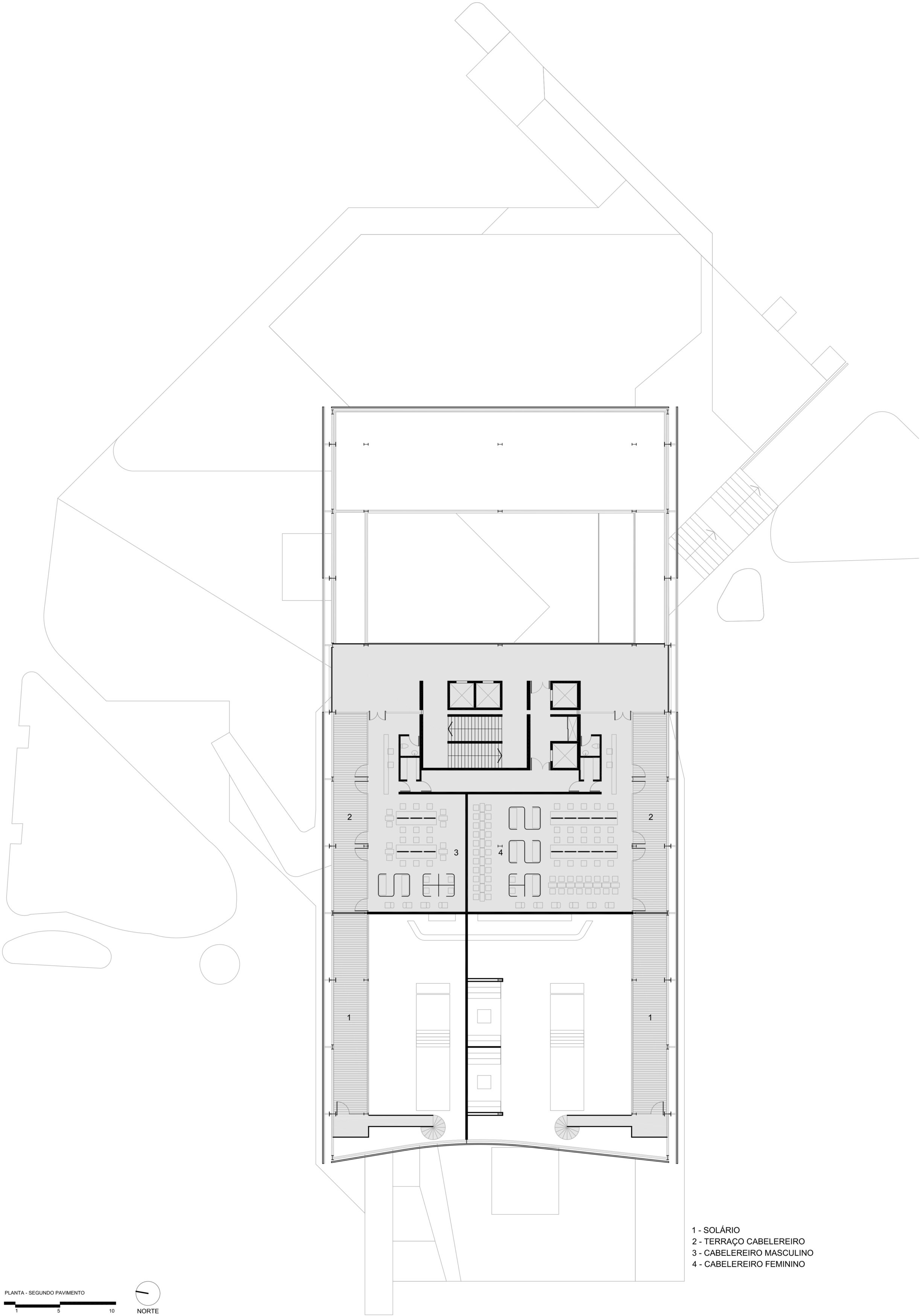
On the one hand, the transformation of the CCR was foreseen, with the updating of its spaces, the conversion of the existing auditorium into a complete theater and the expansion of the area, allowing all the club's cultural activities to be concentrated there. On the other hand, it was proposed to implement the Wellness and Health Center, located next to the tennis center, intended to house locker rooms, administrative areas, saunas, medical and physiotherapy center, as well as services such as a barbershop, beauty salon, café and restaurant.

At the end of the process, the proposal developed by the MMBB was selected for the Cultural and Recreational Center (CCR), while our office was in charge of the project for the Wellness and Health Center (CBS).

Relationship with the Park and the City by Mario Biselli

Among my fondest childhood memories is that of a place that represents a glimpse of paradise. An indelible figure is presented in a route that begins at the entrance portico of Tucumã Street, from where the esplanade with the palm trees can be distinguished, praising its linearity; On one side the headquarters, on the other the water park with wonderful lines, the set of lowered changing rooms and the restaurant on its roof.

I remember the flights in space projecting from the trampolines, and the unlikely swimming pool built in an inverted vault, a structure that also serves as a support for it.

Later, the club surprised me again by raising the athletic track on a slab, under which it housed the parking lot. This small testimony lends itself to affirming what for me is the most notable distinctive feature of Clube Pinheiros as an institution.

In other words, the remarkable sporting, social, cultural and administrative history of the club was never accompanied by mediocre architecture, on the contrary, it made a point of using the best of the modern architecture of São Paulo as a way of representing itself to society and its members. He did all this with particular attention to landscape and ecological aspects, wisely understanding that its formidable territory of 170,000 m2 is nothing less than a park in the middle of one of the most valuable regions of the city.

Read more

LOCATION
São Paulo, SP-Brasil

AREA
8.600,00m²

TEAM
Mario Biselli, Artur Katchborian, Vitor Zanatta, Vinícius Figueiredo, Henrique Zulian, Chayene Cardoso, Breno Quaioti

STRUCTURE
SP Project

INSTALLATIONS
Greenwatt

PHYSICAL MODEL
Practica Models

RENDERS
BK

AWARDS
1st Place in the competition for the creation of a Wellness and Health Center (CBS).

Project download Next project →