JEONGOK MUSEUM

2006

MUSEUM AS A JOURNEY BETWEEN EMPTY AND FILLED SPACES
By searching for objects, the excavation also reveals empty space, a space where, in ancient times, human relationships developed.

After the discovery of these objects and evidence of this existence, the nature of the place is transformed. The environment, which for a certain period was filled by the earth, returns to its original condition of empty space, where human existence is possible.

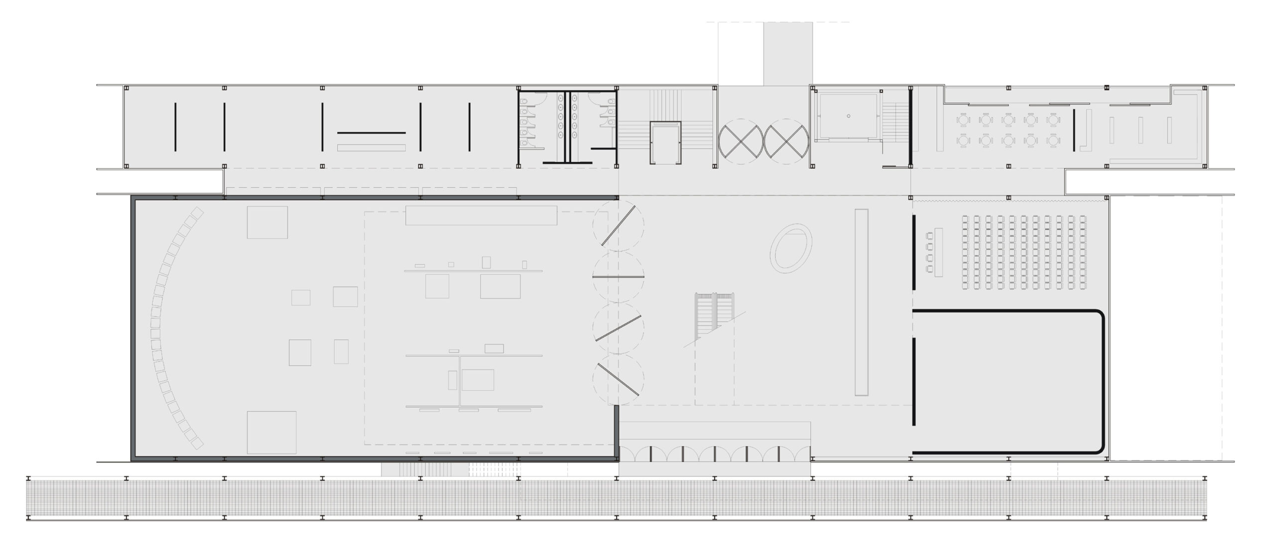
The intention of the project is to create a condition in which this emptiness can be evidenced. Elevated from the ground, the found objects can be displayed in a similar space, an exhibition space that builds the void. A bridge that spans and connects the hills was the alternative chosen to represent this desire, as part of the route.

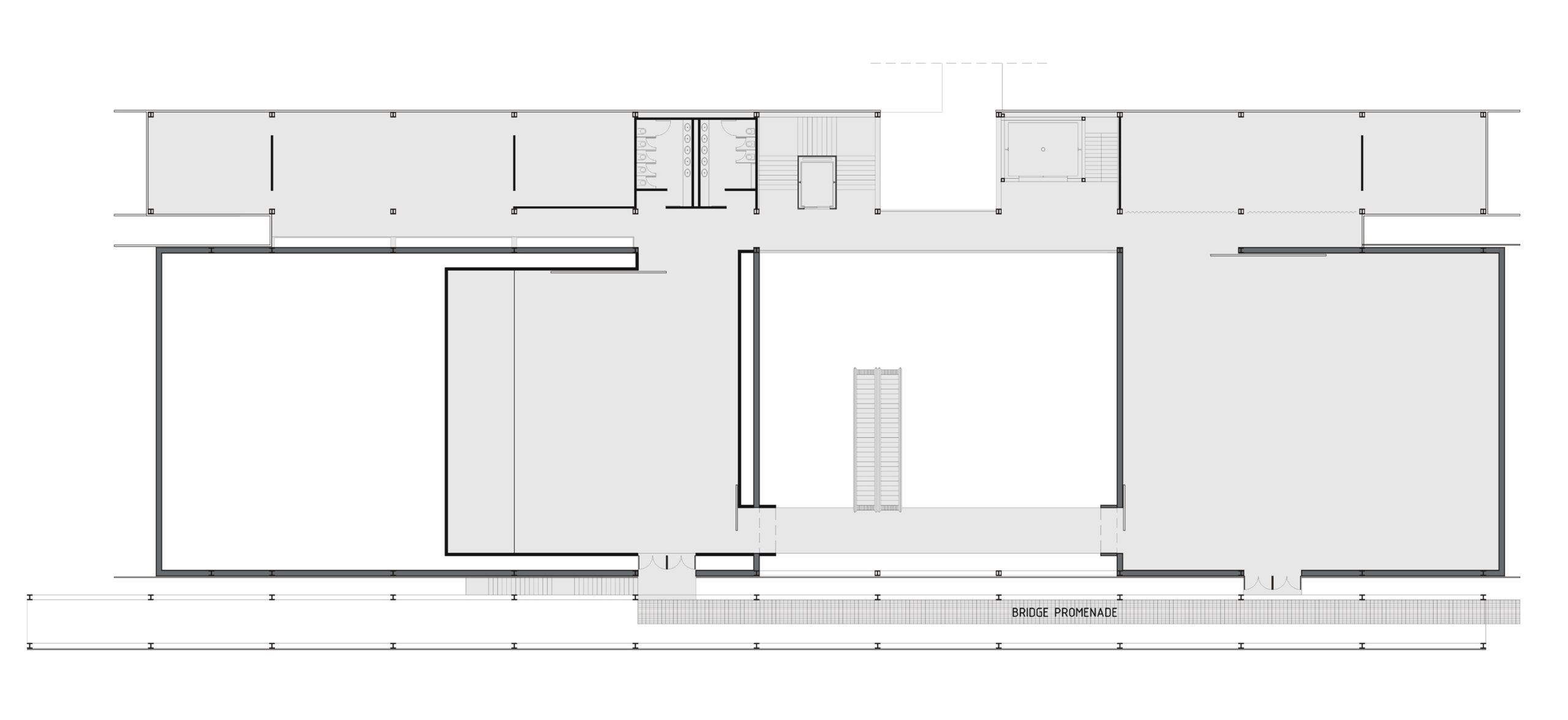
The other part of the program is located underground. The section on the site, with the same volume as the exhibition space, houses the educational sector and administration on the first underground level, curatorship and archive on the second, and storage and mechanical equipment on the third. The openings create patios that bring in natural light and ventilation, as well as reveal the layers of the earth.

The visitor appropriates the museum by overcoming the barriers of natural geography. Its location was chosen at a confluence of paths, allowing the visitor to cross the museum in a casual way. A large staircase connects the lower levels to the upper levels, as well as ramps with different slopes and walkways that allow access and connection between different points of the site and the museum.

The museum seeks to create a path between the void and the filled, between the discovered and the undiscovered, a task of humanity.

Read more

LOCATION
Gyeonggi-do, Coréia do Sul

AREA
5.150,00m²

RENDERS
BK

Project download Next project →