NAN JUNE PAIK MUSEUM

2003

A MUSEUM AS A BRIDGE
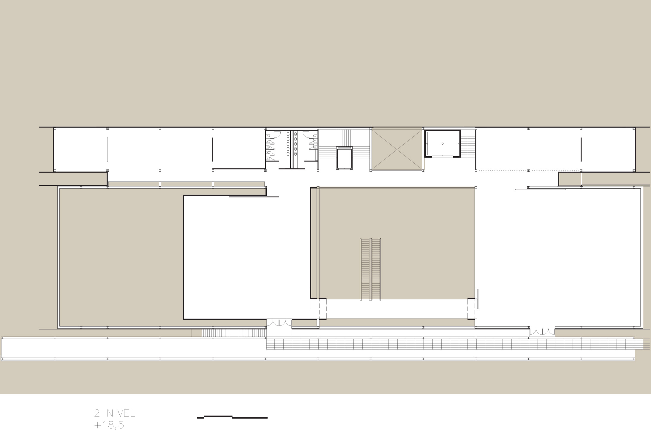
Observing the topography of the terrain leads us to an almost irresistible desire to overlap the valley through a bridge, joining the two small hills that present themselves as the most striking feature of the place.

Seeking to reconcile the subsequent aspects related to the architectural/museological program and its insertion in the terrain, internal routes and connection between buildings of the NEIGHBORHOOD PARK, as well as several other technical and functional aspects, we realize that the bridge, as an architectural approach, presents an enormous amount of advantages in relation to other possibilities. The bridge is also a solution with a controlled environmental impact, since it is supported with only four support points and allows a desirable transparency for the building, in view of the surroundings and the greenery.
The bridge also reveals itself as an inexhaustible source of poetry, opens up to an infinity of metaphorical and analogical interpretations and, throughout history, has been one of the favorite themes for civil engineering and architecture.

Read more

LOCATION
Kyiongi–Coréia do Sul

AREA
5.200,00m²

TEAM
Mario Biselli, Artur Katchborian, Guilherme Motta, Daniel Corsi, Natália Celedon, ilvio Sguizardi Marcio Coelho, Roberto Fialho, Valéria dos Santos Fialho, Luciano Cersósimo, Leandro Alegria Pereira, Carol Pudenzi, Joao Paulo Daolio, Luciano Cersósimo, Leon Benkler, Visualize Arquitetura Digital

RENDERS
BK

AWARDS
Semifinalist Project in International Competition - UIA, 2003

Project download Next project →