CASTELATTO PAVILION

2022

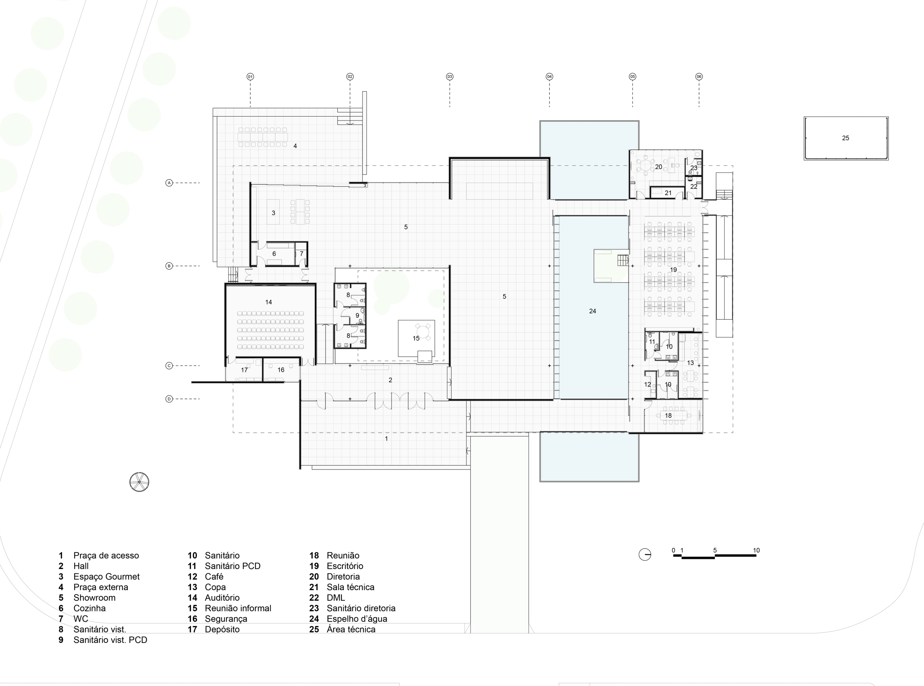
The Castelatto Pavilion was implemented in the company's industrial complex, located outside the urban area of Atibaia, surrounded by low hills and green areas. The production sheds occupy a significant part of the land, but there are also preserved green areas and a riparian forest along the stream that surrounds the property. Between the riparian forest and the sheds, an area of good proportions was destined for the construction of the Pavilion, due to its representative and institutional character.

The building is intended to house exhibition spaces. Initially focused on the Showroom of the products of the industry in which it is inserted, the set also added spaces for art exhibition.
The uniqueness of this project lies, first of all, in the quality of the spaces, spacious, well-lit and with patios-gardens and a reflecting pool.
The distribution of the project highlights the exhibition spaces, which are the essence of the Pavilion. The design stands out for the desire for a pleasurable route - a promenade - from the external access, with squares, galleries, exhibition spaces, auditorium, spaces for events and terraces.
Each space has a well-defined identity, and the circulation is continuous, without doors or blockages of any kind, so that the route has the same importance as the spaces themselves.

Read more

LOCATION
Atibaia, SP – Brasil

AREA
2.350m²

TEAM
Mario Biselli, Artur Katchborian, Cassia Lopes Moral, Alexandre Biselli, Stephanie Luna, Victor Piza, Lucas Reis, Carolina Gomes

LANDSCAPING
Benedito Abbud

INTERIOR ARCHITECTURE
Denise Barretto

METALLIC AND CONCRETE STRUCTURE
Edatec

ELECTRICAL AND HYDRAULIC INSTRALLATIONS
FTCH Engenharia Civil Ltda.

ELECTRONIC SYSTEMS
Eureka

AIR CONDITIONING
Arcontemp

LIGHTING
Rene Adriani Jr.

CONSTRUCTION
Lock Engenharia

PHOTOS
Nelson Kon

Project download Next project →