HOUSING PPP – ASPHALT PLANT

2022

Barra Funda, in the west of São Paulo, is a neighborhood that carries in its history a series of deep and complex urban transformations. Formerly a rural area, its urbanization process began with the arrival of the railroad in the nineteenth century, which was decisive for the neighborhood to become an important industrial and residential center. Over the decades, a series of changes have shaped its landscape, such as the installation of the Asphalt Plant of the City of São Paulo, in 1951, which played a central role in the city's infrastructure until it was deactivated in 2019. With the end of its activities, the land was transferred to the state government and incorporated into the Public-Private Partnership (PPP) project of the Center, aimed at the construction of social housing. From a careful process of revitalization and environmental decontamination, the site received 417 new housing units, distributed in four towers, in addition to a commercial complex, marking an important intervention in the urban requalification of the region.

Located on the corner of Avenida Dr. Abraão Ribeiro and Rua Norma Pieruccini Giannotti, the project takes advantage of this intersection point, implanting the commercial tower in this interstice, in order to highlight and enhance the presence of the place. This decision goes beyond the logic of urban design, but converts this point of confluence into space, reinforcing the symbolic importance of the corner, an essential element of the city's landscape.
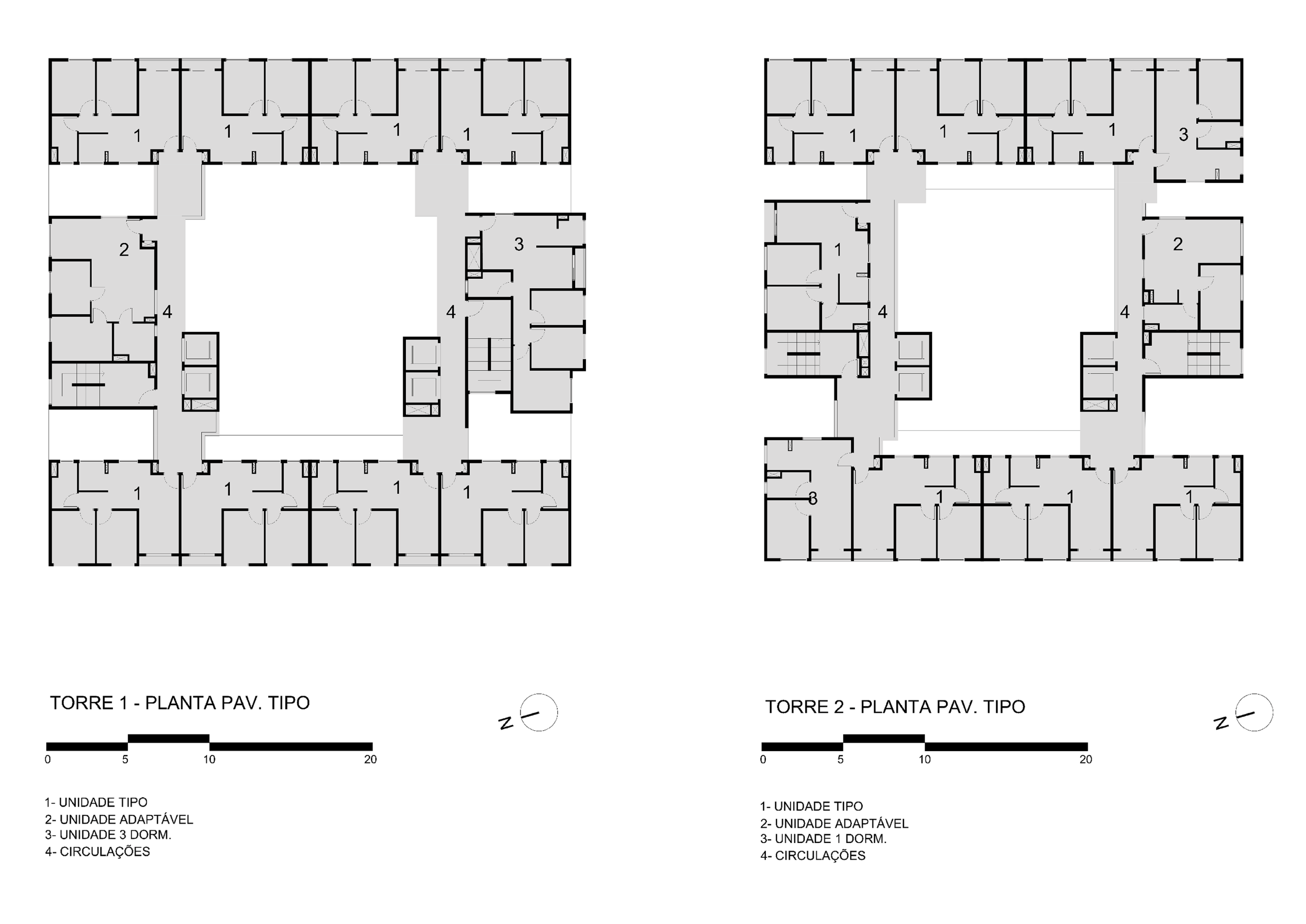
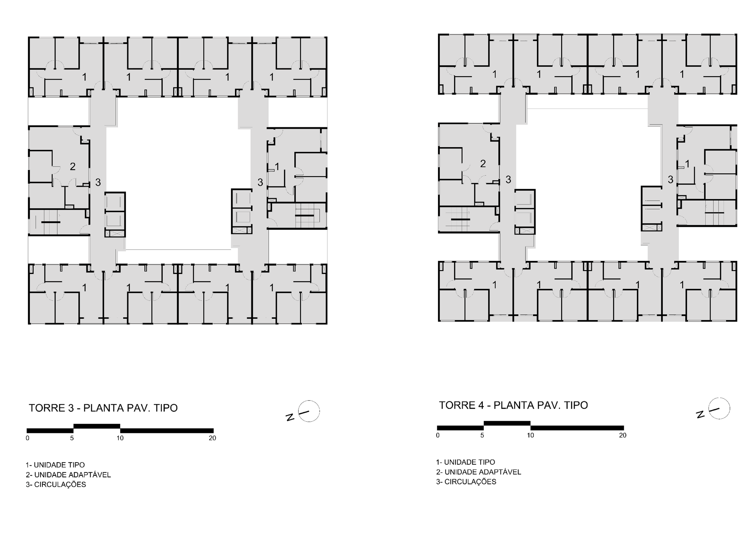
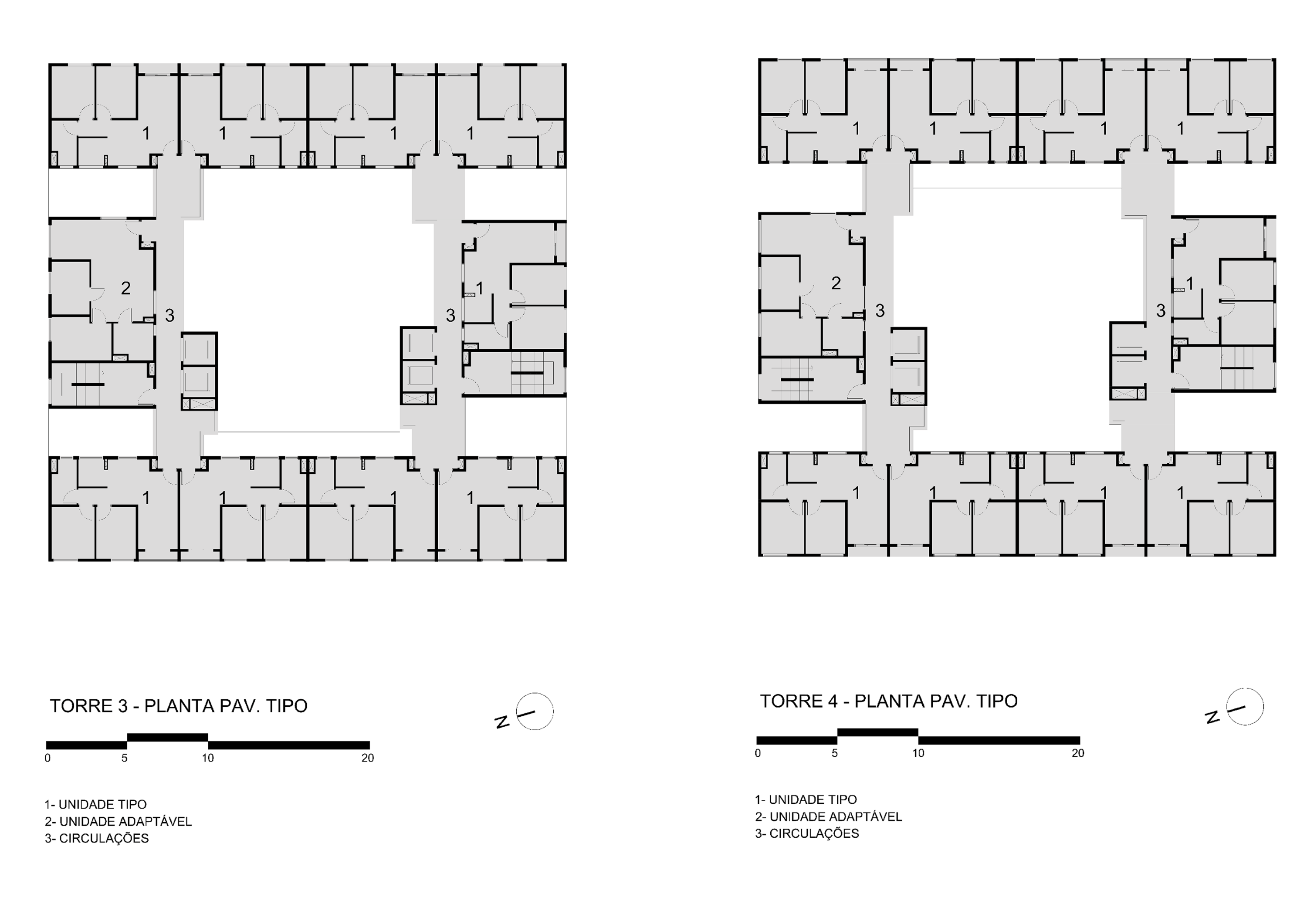
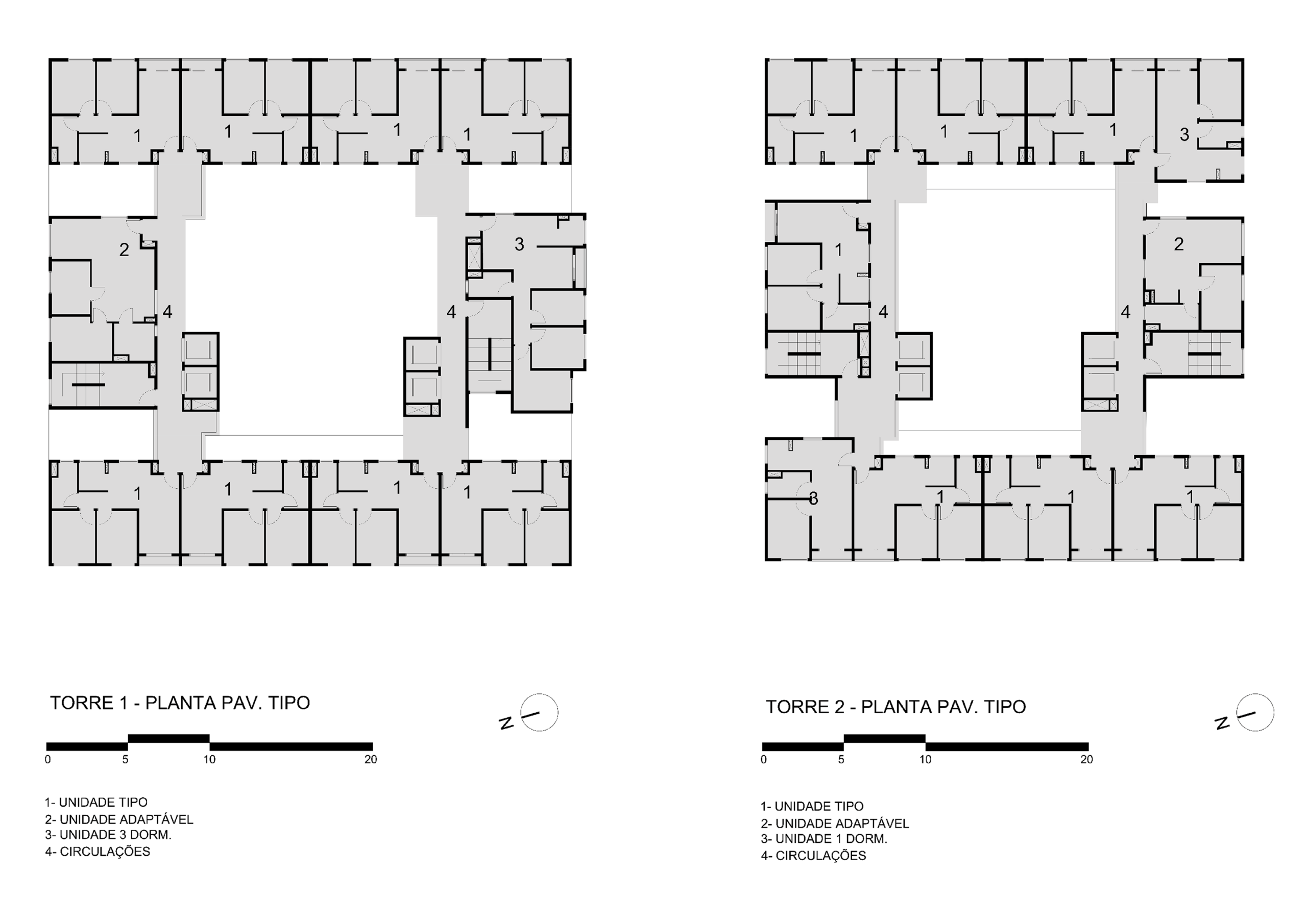
The four residential towers were carefully arranged, with setbacks between them, promoting an arrangement that favors the collective space and ensures the ventilation and natural lighting of the place. The center of the court thus becomes accessible to residents, which reflects a sense of belonging, enhancing the void now as a living space. The strategy adopted in the project aims to create a harmonious relationship between the buildings and the street. The towers were partially aligned, thus creating visual openings and also ensuring better insolation and ventilation. In addition, the commercial tower houses corporate floors, with a marquee that surrounds the sidewalk and houses commercial stores on the ground floor. Here the building opens up to the city, an aspect that contributes to the urban vitality.
The project recovers elements such as the street and the corner, while integrating contemporary elements, such as the insertion of commercial stores on the ground floor, which strengthen the relationship between the individual and the collective space. The proposal promotes a balance between individuality and urban coexistence, and creates a more fluid and dynamic environment, where the boundaries between private and public spaces become more permeable and accessible.
The design of the housing towers is also characterized by a functional and efficient architectural configuration. The units are arranged on the peripheries of the towers, with a horizontal circulation that winds through the central atrium, creating open, breathing cores. Such an arrangement allows natural light to flood the spaces, and also favors air circulation, reducing the need for artificial lighting and promoting thermal comfort. The distribution of the units around the central atrium and the use of horizontal circulations also facilitate the integration of spaces, promote better fluidity and create an organization that values accessibility and the meeting between residents.

Read more

LOCATION
Barra Funda, São Paulo, SP

AREA
42.945,92m²

TEAM
Mario Biselli, Artur Katchborian, Ana Carolina Ferreira Mendes, Carla Gotardello, Hugo Rossini, Juliana Trama, Lucas Ferreira dos Reis, Luiza Franklin, Eduardo Amaro, Kathleen Oliveira

LANDSCAPING
Biselli Katchborian

LIGHTING
Fator Projetos

STRUCTURE
Arco e Estrucalc

METALLIC STRUCTURE
CLR

FOUNDATIONS
Solosfera

ELECTRICAL
Fator Projetos

HYDRAULICS
Fator projetos

AIR CONDITIONING
L.S. Sistemas Térmicos LTDA

CONSTRUCTION
Construtora Canopus

PHOTOS
Guilherme Uemura

Project download Next project →