CASA BV

2008

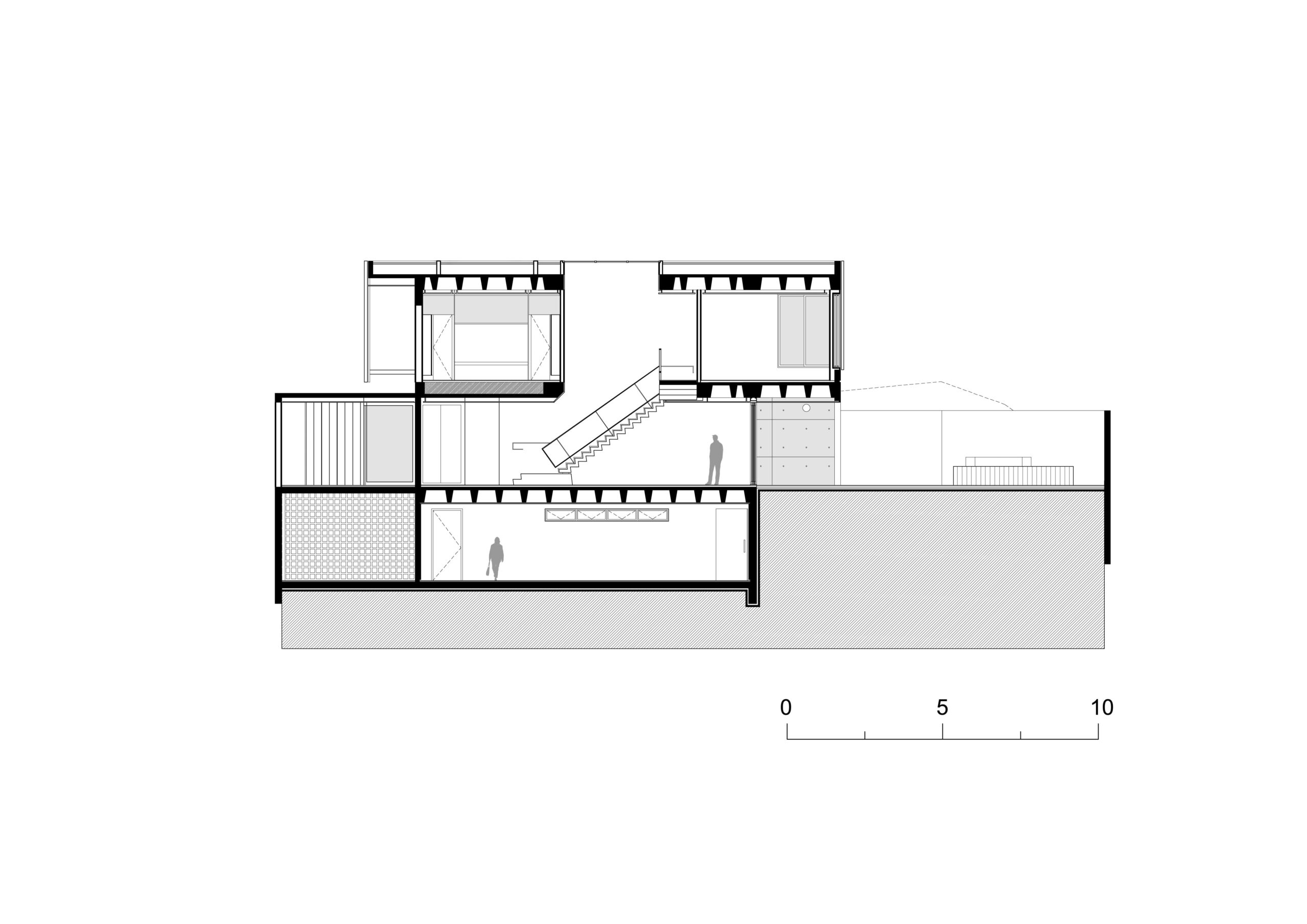
A concepção arquitetônica da residência situada no bairro do Morumbi em São Paulo, segue um raciocínio estrutural, evidente nos grandes balanços resultantes das lajes nervuradas.

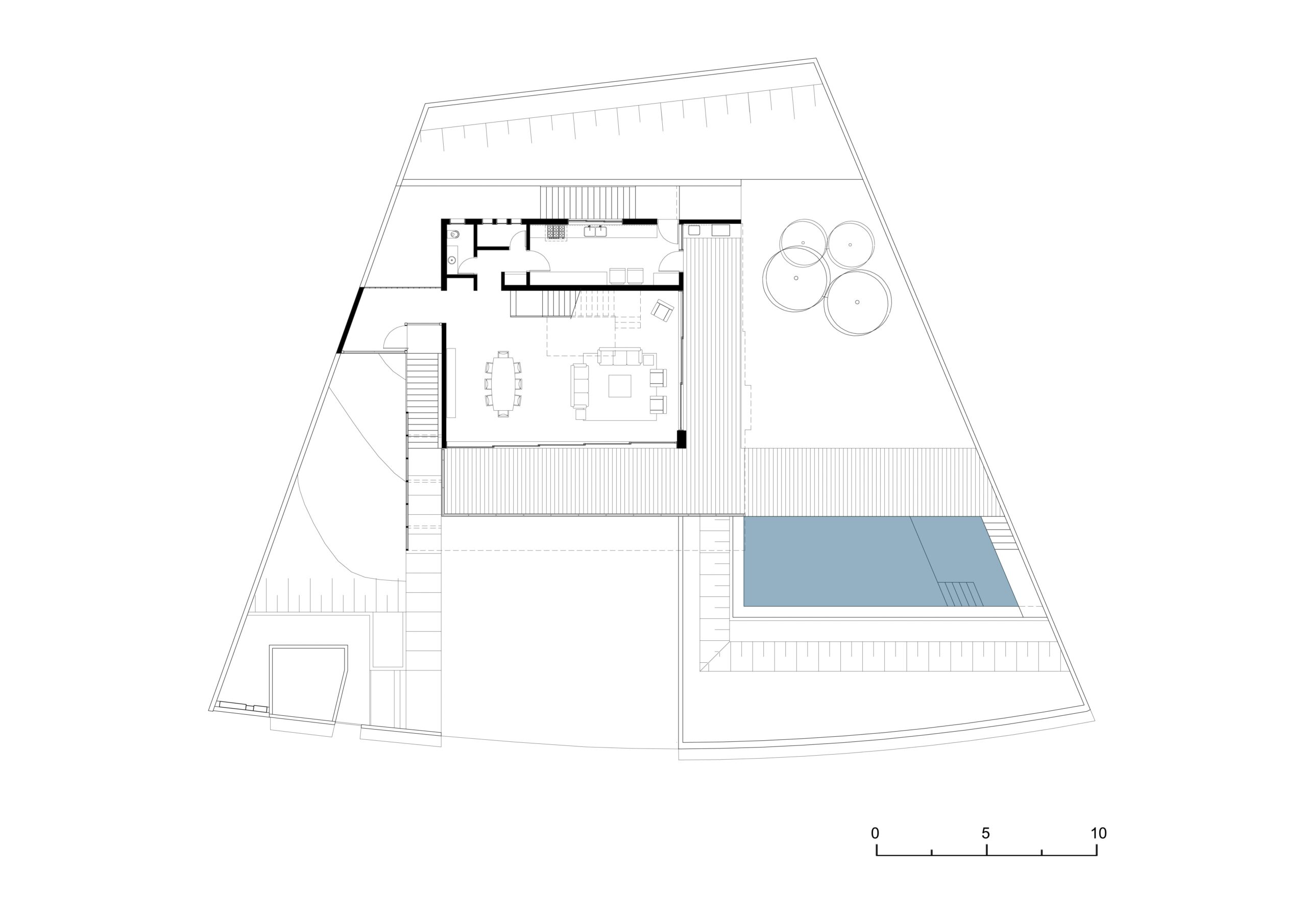
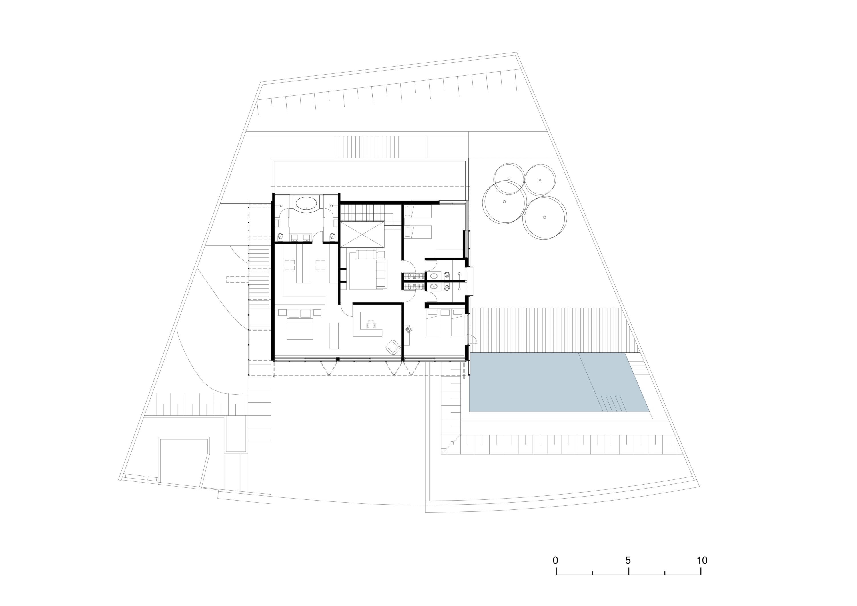
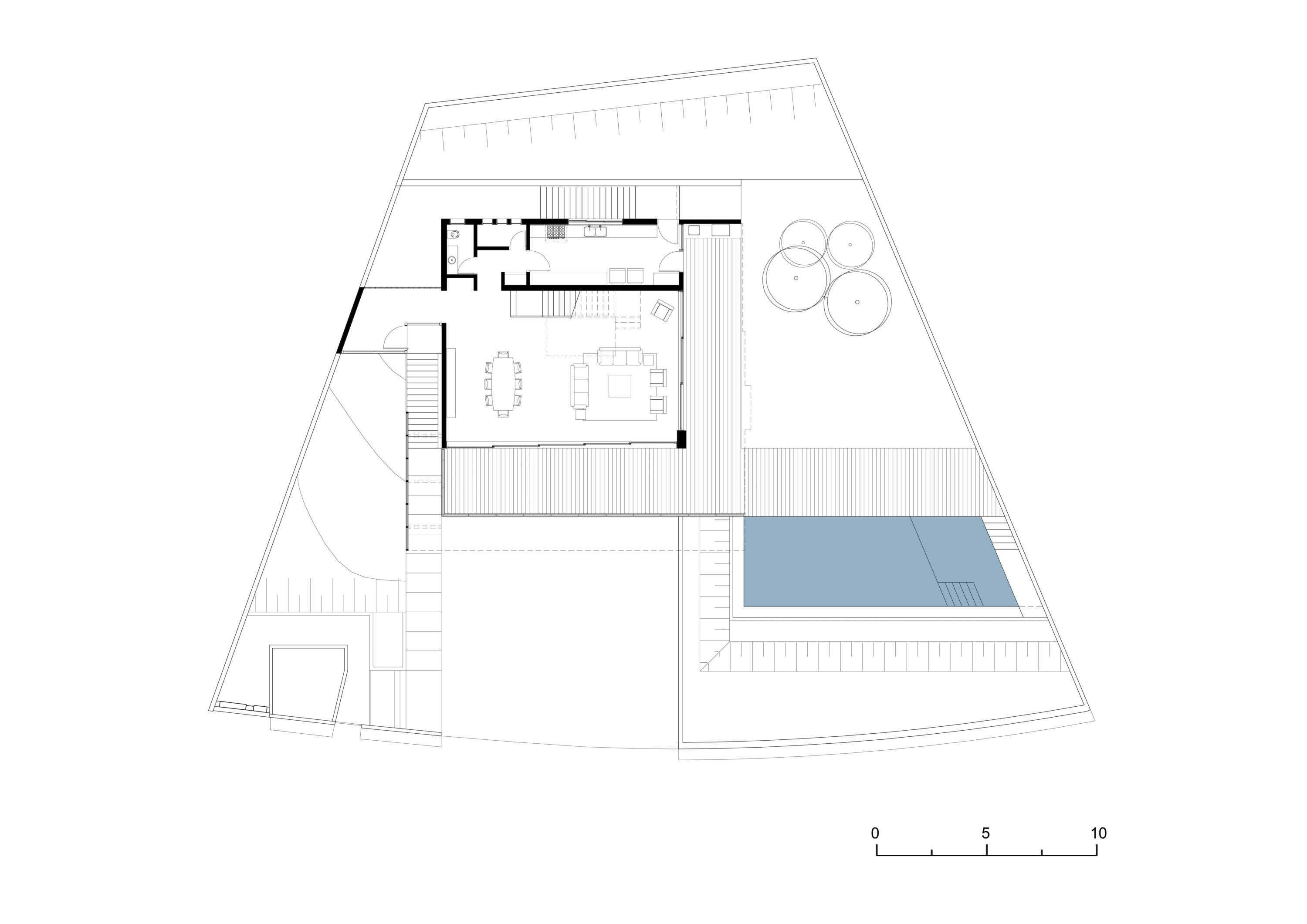
A residência está resolvida em 3 níveis, sendo o primeiro para garagem e áreas de serviço, o segundo para cozinha e sala, e o superior para os quartos e sala íntima.

É uma casa tipicamente urbana em um terreno de aclive acentuado a partir da rua, assim o partido arquitetônico é quase uma resposta imediata às condições do lugar, o qual oferece sua maior divisa para norte e para a vista de uma extraordinária e rara porção de mata.
A empena lateral de madeira é um elemento de destaque uma vez que marca o acesso principal da residência, garante a privacidade dos moradores, protege a construção da insolação excessiva além de criar um agradável espaço de convivência na varanda.
O aço é representado através de desenho refinado dos elementos como guarda-corpo e caixilhos. No segundo pavimento painéis em alumínio do tipo camarão filtram a luz excessiva do sol além de trazerem ritmo e movimento à fachada principal. Um quadro de aço sobressai da elevação lateral em madeira marcando as janelas dos banheiros.


Ler mais

LOCALIZAÇÃO
São Paulo, SP–Brasil

ÁREA
520,00m²

EQUIPE
Mario Biselli, Artur Katchborian, Tais Cristina da Silva, André Biselli Sauaia, Marcela Ernani

MAQUETE
João Paulo Daolio

PAISAGISMO
Cenário Paisagismo

ARQUITETURA DE INTERIORES
Marcela Ernani

PROJETO ESTRUTURAL
Sayeg Engenharia

CONSTRUTORA
Lazzati Engenharia

SERRALHERIA
Matalatucci

CAIXILHARIA
JMAR Esquadrias de Alumínio

MADEIRAS
Madeireira Pau-Pau

MOBILIÁRIO
Estalagem Móveis

FOTOS
Nelson Kon

PRÊMIOS
MEMORIAL

Faça download do projeto Próximo projeto →