CASA NSN

2014

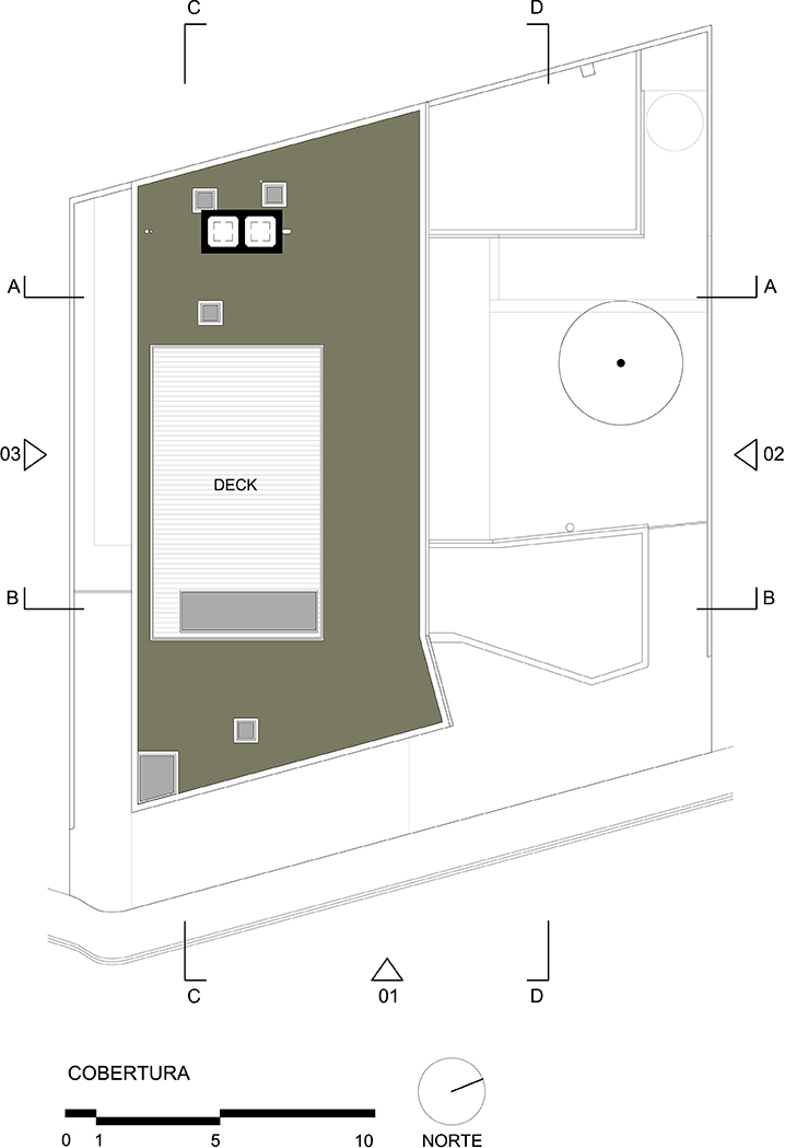
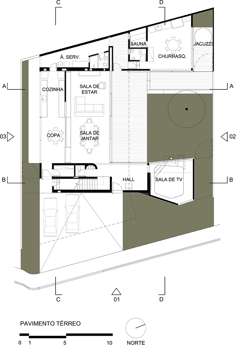
Situado em um lote com geometria regular e plano, em um condomínio fechado de Curitiba, o projeto trabalha a ideia de dividir o terreno em 2 faixas iguais de 10 metros no sentido longitudinal, de modo a criar uma faixa edificada e outra não. A primeira recebe a maior parte a ser edificada, enquanto a segunda é reservada para a área verde e volumes menores da sala de TV e da churrasqueira, configurando um pátio interno, ideia solicitada pelos clientes em etapa inicial do projeto.

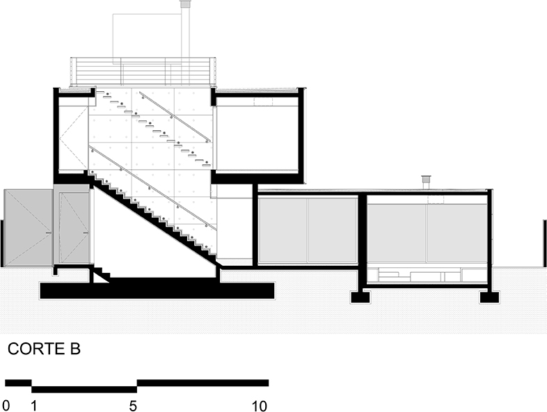
No térreo, o espaço da Sala de Jantar, Sala de Estar e Copa podem se abrir completamente ao jardim interno, criando uma subfaixa com os mesmos 10 metros transversal ao terreno. Aos fundos encontra-se a Área de Serviço e a frente a circulação vertical.
No pavimento superior desenvolve-se o setor íntimo, comportando 2 Dormitórios com um terraço, 2 Suítes, Roupeiro, Escritório e Sala Íntima. O volume, em concreto moldado “in loco” vence um vão central de 10 metros e oferece um balanço na frente da casa junto à rua para abrigar os automóveis.

Ler mais

LOCALIZAÇÃO
Curitiba, Paraná–Brasil

ÁREA
460,33m²

EQUIPE
Mario Biselli, Artur Katchborian, Guilherme Filocomo, André Biselli Sauaia, Ana Carolina Martins, Luiza Monserrat, Vitor Zanatta, Vinicius Figueiredo, Enrico Arrigoni

ESTRUTURA, ELÉTRICA, HIDRÁULICA, CLIMATIZAÇÃO, GÁS E LUMINOTÉCNICA
SP Project–Miguel Brazão

FOTOS
Nelson Kon

Faça download do projeto Próximo projeto →