ESCRITÓRIO DE ADVOCACIA RCBF

2003

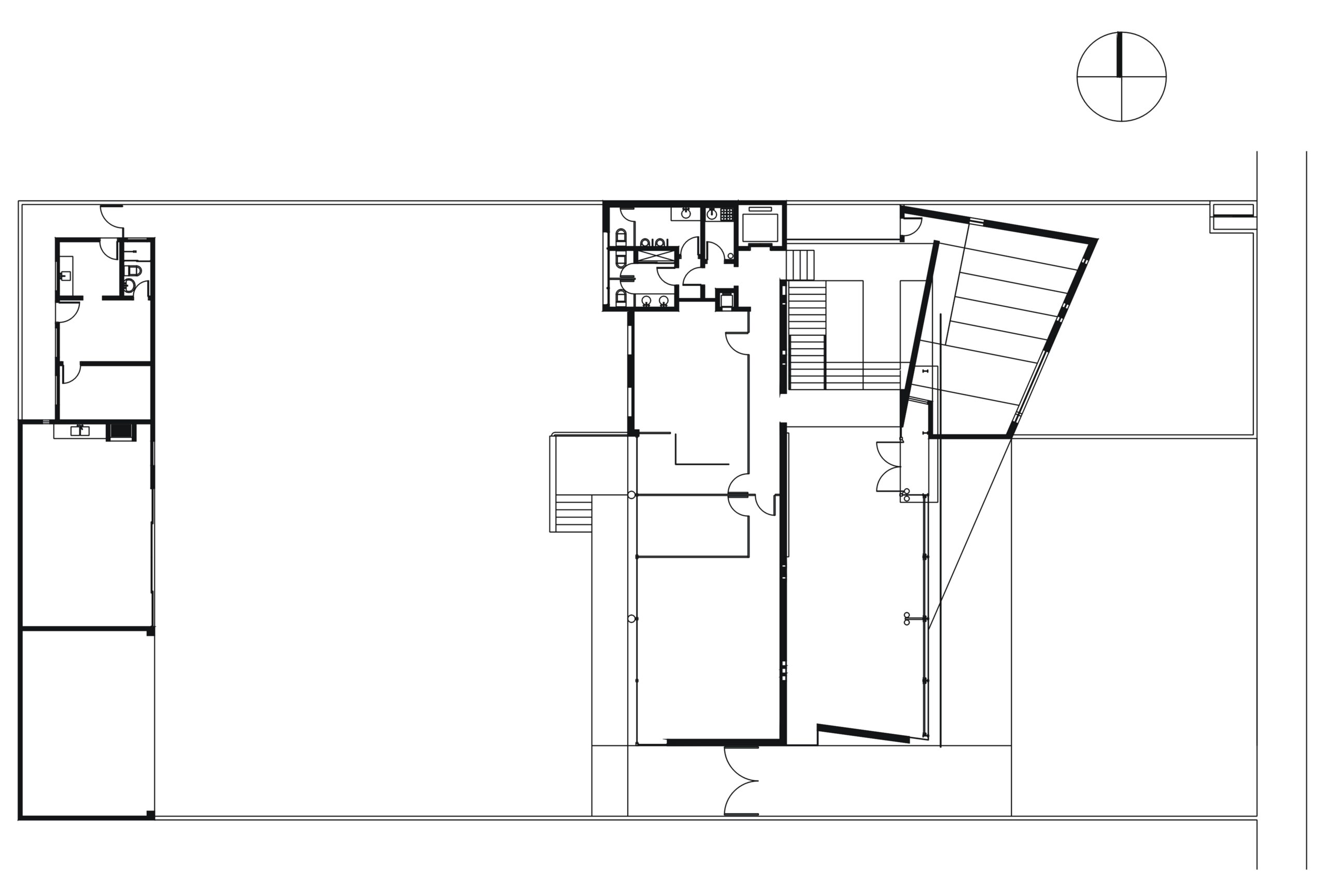
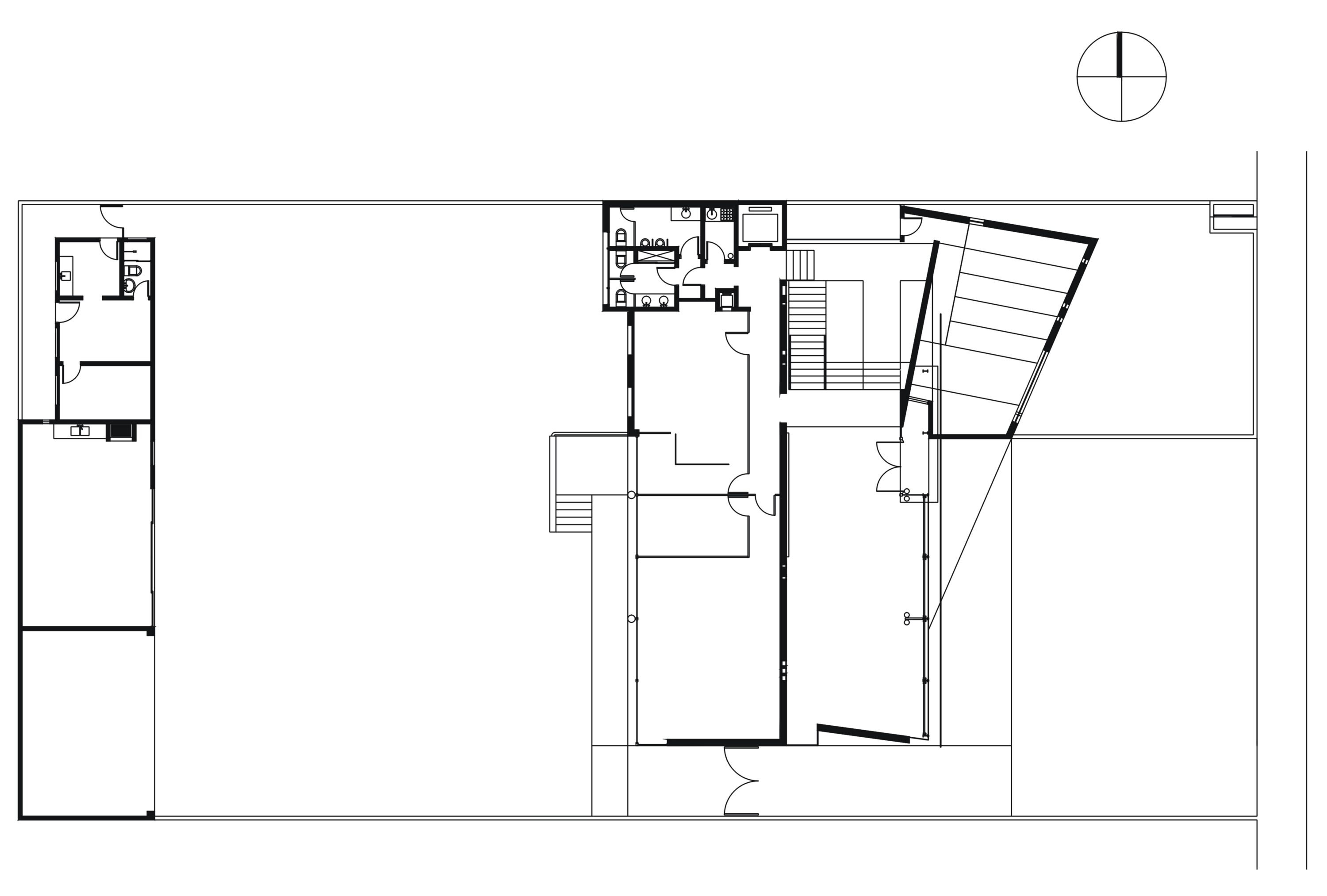
O edifício, sede de um escritório de advocacia, está localizado em uma avenida fora da área central de Curitiba, em um setor com pouca densidade, porém, em transformação. Apesar de suas pequenas dimensões, este volume bipartido apresenta um singular sentido de monumentalidade, enfatizado pela esplanada de chegada.

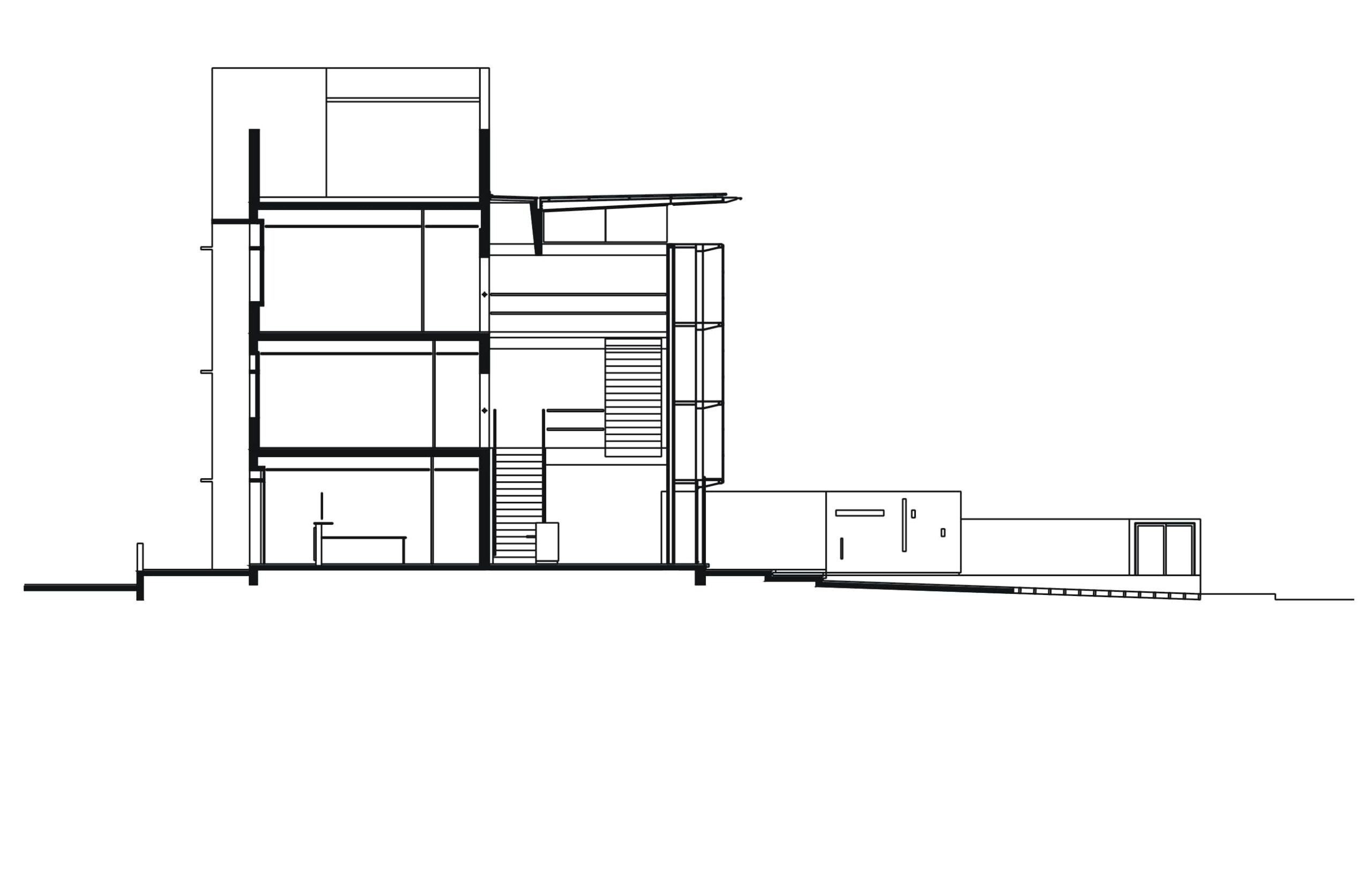
Um generoso vestíbulo, envidraçado e aberto, de tripla altura (9,50m) funciona como elemento de transição entre o exterior e o interior. Além disso, serve de antessala para o pequeno auditório semienterrado que se desprende obliquamente do edifício sobre o espelho d’água da esplanada. Este volume, de concreto aparente, em angulação ligeiramente mais aberta que o plano cego da escada, induz o olhar para o acesso ao edifício.
A cobertura, de chapas de cobre e ligeiramente inclinada, flutua sobre o vestíbulo e, assim como o plano frontal de vidro, fortalece o sentido de leveza e transparência do conjunto.
Dentro do vestíbulo e por toda a sua extensão um plano vertical, de arenito vermelho, evidencia a divisão longitudinal do edifício e funciona como uma segunda fachada. Por trás dela, o conjunto de salas configura a metade compacta do edifício, que, organizado em três pavimentos, aproveita a vista generosa para um campo de golfe localizado a oeste do lote.
As infraestruturas – instalações sanitárias, copa e elevador – estão concentradas na extremidade norte, junto à divisa, e no terceiro pavimento, uma sala especial com pé-direito duplo marca sua presença através de um volume curvo que se projeta sobre o vazio do vestíbulo. Uma pequena edícula, no limite posterior do lote, abriga a pequena garagem e as funções administrativas complementares.

Ler mais

LOCALIZAÇÃO
Curitiba, PR – Brasil

ÁREA
1.000,00 m²

EQUIPE
Mario Biselli, Artur Katchborian, Cristiana Rodrigues, Heverson Tamashiro, Alexandre Cafcalas

FOTOS
Nelson Kon

Faça download do projeto Próximo projeto →