FATMA FAPESC

2012

A condição natural de um lugar é sempre única. Topografia, vegetação e condições climáticas nunca se repetem em um sítio. A área do Parque Tecnológico e o terreno destinado à implantação das sedes da FATMA e FAPESC apresentavam uma singular beleza em sua origem. Resta ao projeto a proposição de uma nova beleza, considerando que a vegetação original foi perdida.

Esta nova beleza deve partir de um diálogo com a geografia, e com os percursos públicos do campus através do terreno. Deste modo, o projeto se desenha como conciliação entre estes elementos e a arquitetura do edifício.
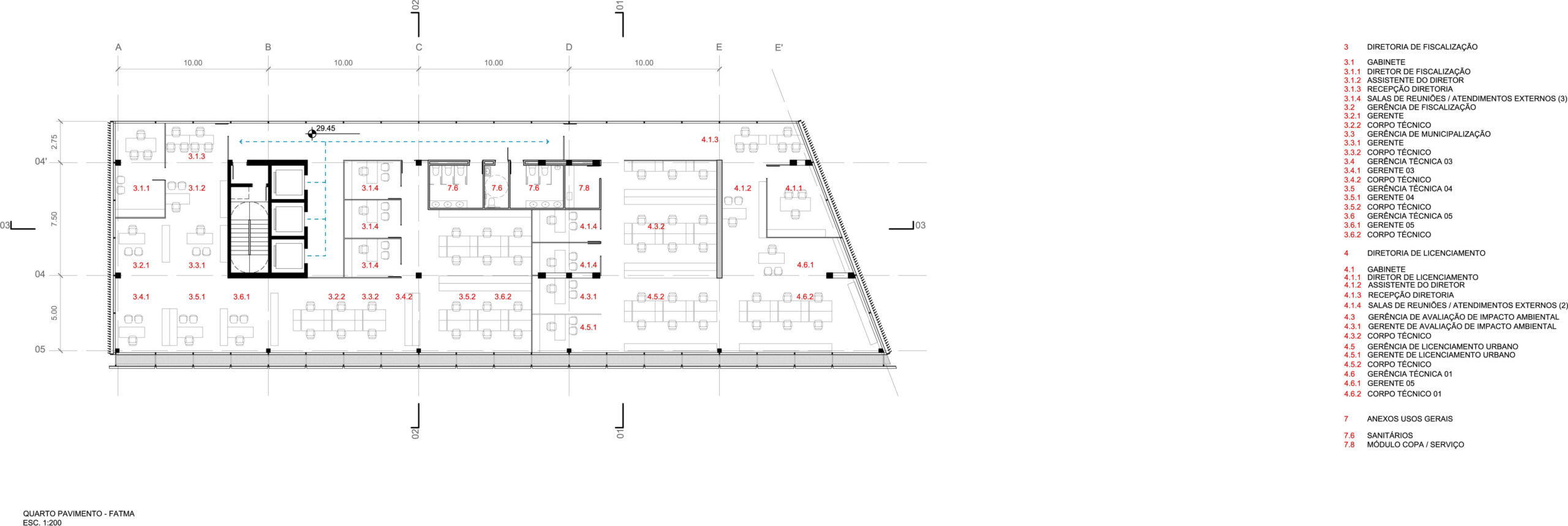
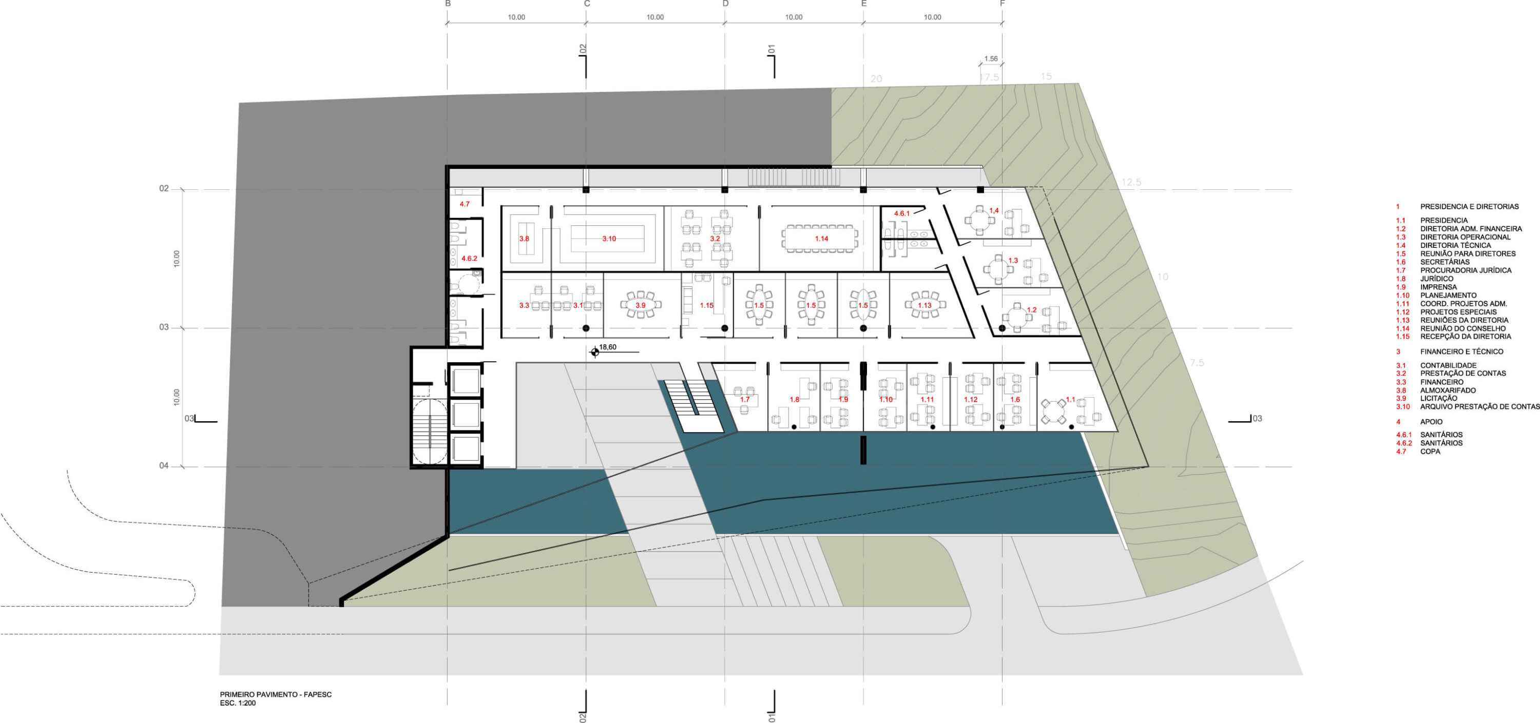
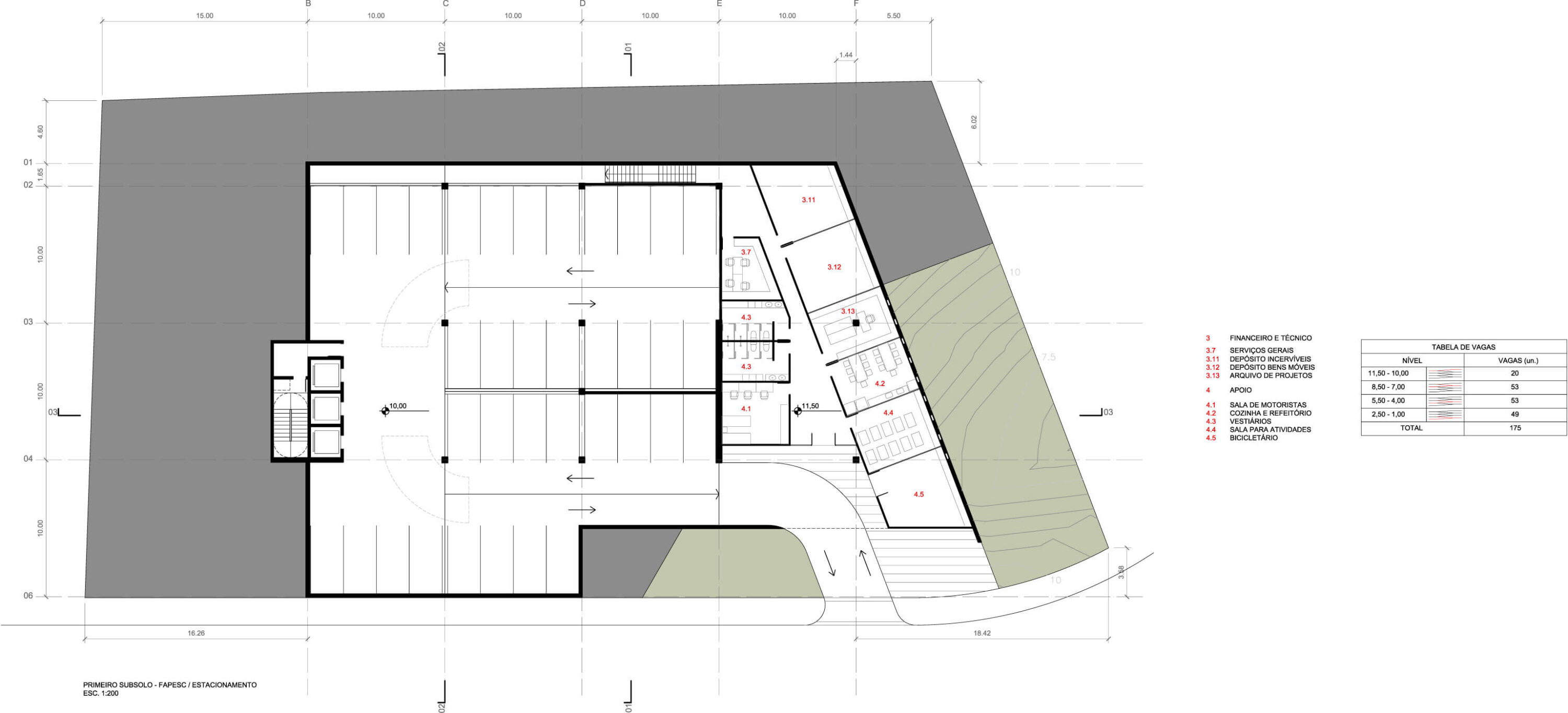
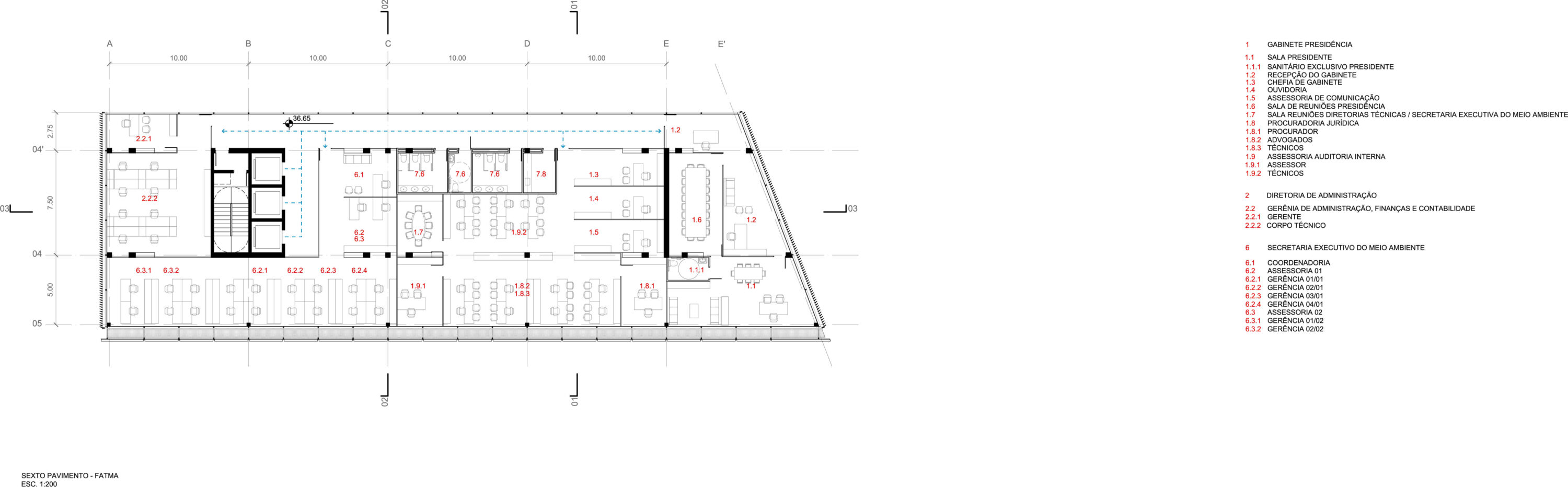
O Partido arquitetônico propõe uma clara divisão entre a sede da FATMA e da FAPESC, através da introdução de um pavimento livre de acesso público que configura uma praça, sem prejuízo da demanda por acessos controlados e da privacidade das áreas de trabalho. Este movimento se destina a reconstruir a topografia depois das necessárias escavações, e a recuperação dos percursos pedestriais através do sítio. Pode ser compreendido como uma generosidade das instituições que ali estarão instaladas, uma gentileza urbana para com o campus.
Esta decisão de projeto satisfaz a demanda pela criação de interfaces permeáveis entre o espaço público e o privado, de modo a promover a interação entre ambas as esferas *. Também serve quanto ao incentivo à diversidade e complementaridade de usos e atividades urbanos* e quanto ao respeito à paisagem e atenção aos impactos decorrentes da intervenção sobre os visuais da área, na medida em que o projeto não apresenta externamente muros de arrimo ou empenas cegas.

Ler mais

LOCALIZAÇÃO
Florianópolis, SC–Brasil

ÁREA
9.500,00m²

EQUIPE
Mario Biselli, Artur Katchborian, André Biselli Sauaia, Cassio Oba Osanai, Paulo Roberto dos Santos, Débora Pinheiro Rodrigues, Maria Fernanda Rechi Vita, Vinícius Miranda de Figueiredo, Marcelo Santos Checchia, Priscila Dianese, Melina Giannoni de Araújo, Guilherme Filocomo, Cassia Lopes Moral

CONSULTORIA ESTRUTURAL
SPPROJECT

CONSULTORIA EM SUSTENTABILIDADE
Boris Villén

ORÇAMENTO
Ricardo Zulques

RENDERS
BK

Faça download do projeto Próximo projeto →