IGREJA TAMBORÉ

2001

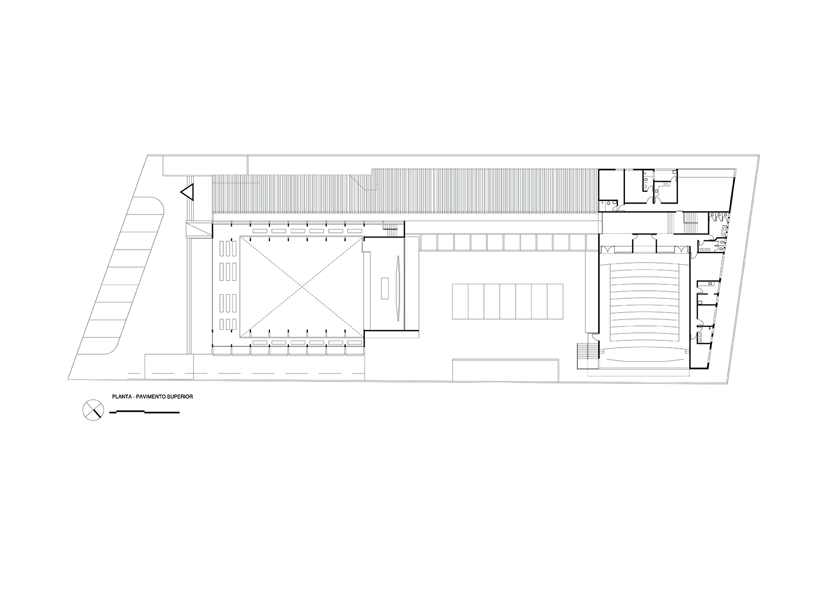
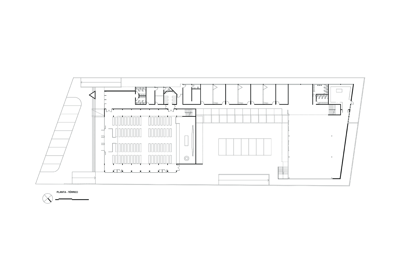
O projeto da Igreja Tamboré organiza-se a partir de um gesto estrutural claro e expressivo: uma grande cobertura curva metálica que define o espaço litúrgico principal e confere identidade ao conjunto. Essa estrutura em arco, levemente deslocada do eixo convencional, cria um interior contínuo, amplo e unitário, no qual a percepção espacial é conduzida pela própria forma da cobertura e pela modulação dos pórticos metálicos aparentes.

A relação entre estrutura, luz e matéria é central no projeto. O fechamento frontal em grande pano envidraçado permite a entrada controlada de luz natural, reforçada pelo vitral abstrato, que qualifica o espaço interno com cores e atmosferas variáveis ao longo do dia. Os materiais — aço, concreto aparente e vidro — são utilizados de maneira franca, evidenciando o sistema construtivo e reforçando o caráter contemporâneo e tectônico da edificação.

Ler mais

LOCALIZAÇÃO
Barueri, SP–Brasil

ÁREA
2.500m²

EQUIPE
Mario Biselli, Artur Katchborian, Paola Biselli Sauaia

FOTOS
Nelson Kon

Faça download do projeto Próximo projeto →