PPP – JÚLIO PRESTES

2018

A área central da Cidade de São Paulo apresenta significativos desafios a qualquer tipo intervenção. Ações convencionais praticadas pelo mercado imobiliário não se aplicam. Não se trata de um lote urbano convencional, onde a estratégia estaria restrita a buscar eficiência na implantação de torres isoladas sob a norma da legislação.
Aqui, o projeto deve considerar prioritariamente uma abordagem urbanística e contextual.

Isto significa que “o lugar faz o Projeto”. O que vem a ser isto?
Basicamente fazer arquitetura responder a estes 2 aspectos:
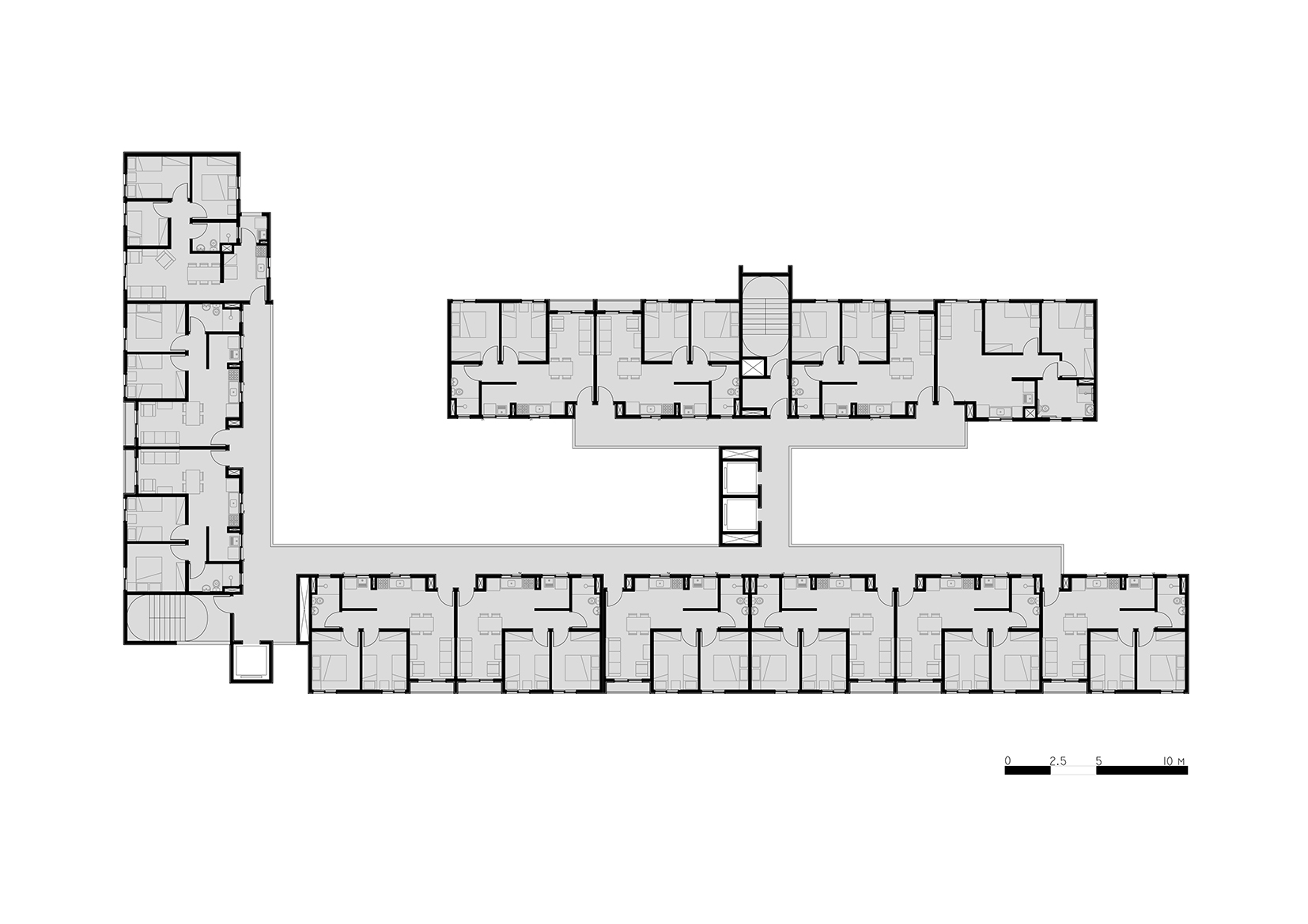
1. Considerar os espaços públicos como prioridade, estabelecendo também os espaços semipúblicos e espaços privados com total segurança e privacidade. Cuidar da necessária permeabilidade urbana no nível térreo, implicando que neste nível os edifícios possam ser atravessados como extensão das calçadas.
2. Observar eixos urbanos e faixas visuais para monumentos, edifícios históricos e edifícios de reconhecido valor arquitetônico. Projetar as quadras urbanas objetivando compor o conjunto arquitetônico de cada uma, respondendo às empenas cegas dos edifícios existentes e, quando possível, desenhando os “miolos” de quadra como praças internas (os chamados espaços semipúblicos)
A Praça Julio Prestes que se torna o pulmão do complexo. Essa praça, projetada com cuidado paisagístico, conecta o complexo à histórica Sala São Paulo, valorizando o patrimônio e ao mesmo tempo revitalizando o espaço urbano. Ao redor, torres residenciais respeitam o contexto, criando uma “pequena cidade” que responde à demanda por habitação, sem deixar de dialogar com seu entorno.
Na parte do território destinada ao âmbito residencial, a demanda de habitações se desenvolve em torres de escalas diversas segundo a condição de cada quadra. A formidável demanda de unidades habitacionais e as dimensões do território em questão nos conduzem a conceber o projeto como uma pequena cidade. Todo o complexo arquitetônico se desenvolve principalmente ao longo de um eixo verde, desenhado como uma praça de dimensões adequadas à escala do complexo.
Como resultado temos um conjunto arquitetônico equilibrado e em harmonia com seu contexto. Entretanto, as maiores virtudes do projeto se verificam na escala do pedestre, através de seus espaços públicos, suas praças com desenho paisagístico esmerado, seus pavimentos térreos permeáveis e acessos diversificados, tanto públicos como privados.
O projeto assim se insere no gigantesco e importantíssimo esforço de requalificação do centro de São Paulo, respondendo à demanda por habitação e apoiando a ação do poder público quanto à dotação do território de equipamentos institucionais.

Ler mais

LOCALIZAÇÃO
Campos Elísios, São Paulo–SP, Brasil

ÁREA
94.596,11m²

EQUIPE
Mario Biselli, Artur Katchborian, Ana Carolina Ferreira Mendes, Carla Gotardello, Camila Stump, Hugo Rossini, Fiona Platt, Mayara Guarino, Mariana Costa, Caio Camillo, Alexandre R. Biselli, Victor Piza, André Biselli Sauaia, Camila Grecco, João Dualibi, Breno Quaioti, Camila Palmieri, Isabela Ignacio de Moura, Lucas Ferreiras dos Reis, Mauricio Addor, Vinicius de Faria, Heloisa Fos

PROJETO CROMÁTICO/PAINEL ARTÍSTICO
Roberto Fialho e Valéria Cássia dos Santos Fialho

CONSTRUÇÃO
Construtora Canopus

FOTOS
Nelson Kon e Guilherme Uemura

Faça download do projeto Próximo projeto →