TEATRO DE LONDRINA

2007

Uma grande Praça e uma Caixa de Luz.
O projeto consiste basicamente destes dois elementos. A praça é antes de tudo um espaço público urbano, mas também se presta a preparar a perspectiva do edifício do teatro, por natureza monumental, auto referenciado, qualificador, novo marco referencial da cidade de Londrina, ao mesmo tempo monolítico e imaterial em função de sua geometria e textura.

O projeto desenvolve-se linearmente segundo um eixo paralelo ‘a fronteira norte do terreno, reservando uma via de serviço junto a esta divisa. O desenvolvimento do programa acompanha este eixo segundo as dimensões dos elementos do programa e oferecendo suas áreas de acesso público (saguão, foyers e plateias) para a praça e para a Rua Attílio Octávio Bizato, claramente vocacionada para os acessos principais. Esta concepção permite a perfeita comunicabilidade entre as caixas e sua infraestrutura de acesso, carga e descarga e funcionalidade, permitindo simultaneidade e reversibilidade de todo o setor de bastidores e contra-regragem.
Acessos de pedestres e automóveis também são possíveis através da rua projetada (B), visando sua viabilidade futura.
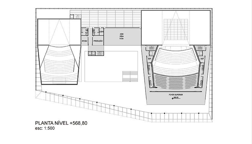
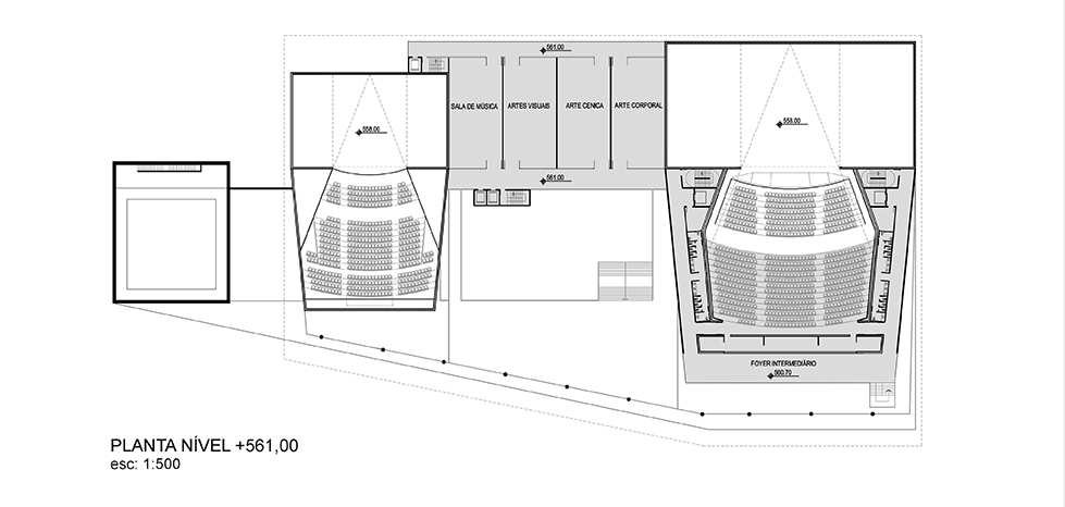
As duas salas de Teatro italiano definem um volume principal, tendo entre elas um volume em 4 pavimentos contendo as áreas funcionais do conjunto: Áreas Técnicas, Camarins, Salas Didáticas e Setor Administrativo. A “Black Box” constitui um volume anexo sem, no entanto, destacar-se do eixo funcional que conecta todas as salas. A biblioteca situa-se no nível do saguão anexa ‘a caixa preta, e está dotada de um jardim rebaixado exclusivo.
A partir da praça o projeto desenha dois níveis de circulação de público: o primeiro na cota 555,00 para acesso geral ao complexo e outro na cota 558,00 para os espaços de Foyer.
O volume principal define-se como um envelope translúcido, desenhado a partir de uma forma prismática elementar, que recebe subtrações geométricas de forma a acompanhar a volumetria natural dos elementos do programa e prover um espaço interno de escala monumental. O volume derivado desta ação se adequa ‘a escala necessária para um conjunto arquitetônico desta dimensão.
Dois níveis de garagem, um subsolo e um externo fornecem as vagas demandadas, estabelecidos praticamente em suas cotas naturais de modo a acessar o saguão em nível e permitir um movimento de terra praticamente nulo.
Salas de Espetáculo
As salas foram projetadas para abrigar confortavelmente o público solicitado pelo edital. Estão dotadas de todos os equipamentos e cabines necessárias para qualquer tipo de espetáculo. As plateias têm inclinações que permitem a perfeita visibilidade de qualquer ponto. As salas têm altura e larguras ótimas e receberam tratamentos de piso, teto e paredes visando atender aos conceitos clássicos de acústica quanto a controle e isolamento, e condições de boa acústica quanto a silêncio, boa distribuição do som, nível sonoro adequado e satisfatório tempo de reverberação.
A “Black Box” tem projeto específico que visa garantir sua flexibilidade de uso.
Construção
Edifício a ser construído predominantemente em estrutura de concreto e alvenaria, com exceção da cobertura e fechamento principal e das estruturas superiores das salas de espetáculo em estrutura de aço
A cobertura principal é composta de treliças de aço e fechamento de materiais isolantes termoacústicos de translucidez controlada. A cobertura apoia-se parcialmente na estrutura de concreto das salas mantendo sua independência em relação a estas. Caixilhos e vidro foram utilizados com grande economia, somente fachada de acesso (Sul) é dotada deste recurso em maior.
O projeto ainda reserva um elenco de materiais de grande resistência, durabilidade e economia.
Os elementos do paisagismo visam uma praça de grandes dimensões e sem obstáculos.

Ler mais

LOCALIZAÇÃO
Londrina, PR–Brasil

ÁREA
15.982,00m²

EQUIPE
Mario Biselli, Daniel Corsi, Laura Pardo, André Biselli Sauaia, Tais Cristina da Silva, Ana Carolina Ferreira Mendes, Cássio Oba Osanai, Cássia Lopes Moral, Natalia Gandini Castilho, Thais Velasco

RENDERS
BK

Faça download do projeto Próximo projeto →