Projects
Timeline
Gallery
WRITINGS
AWARDS
PRESS
NEWS
Team
CONTACT
EN
PT
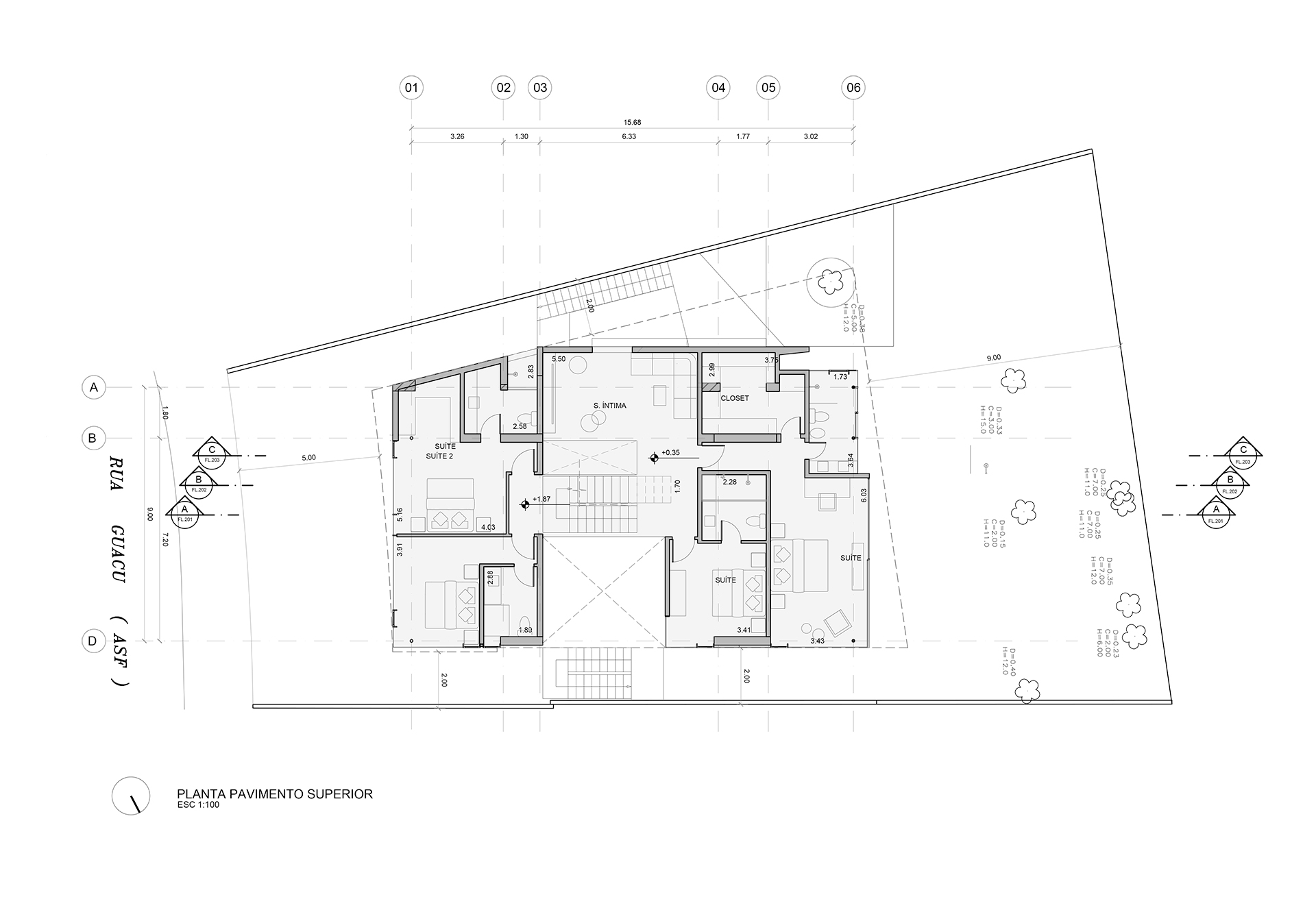
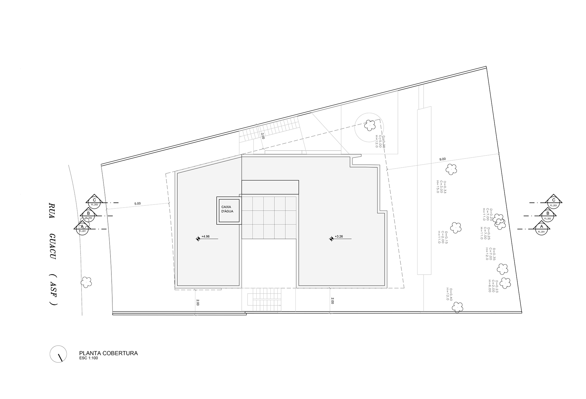
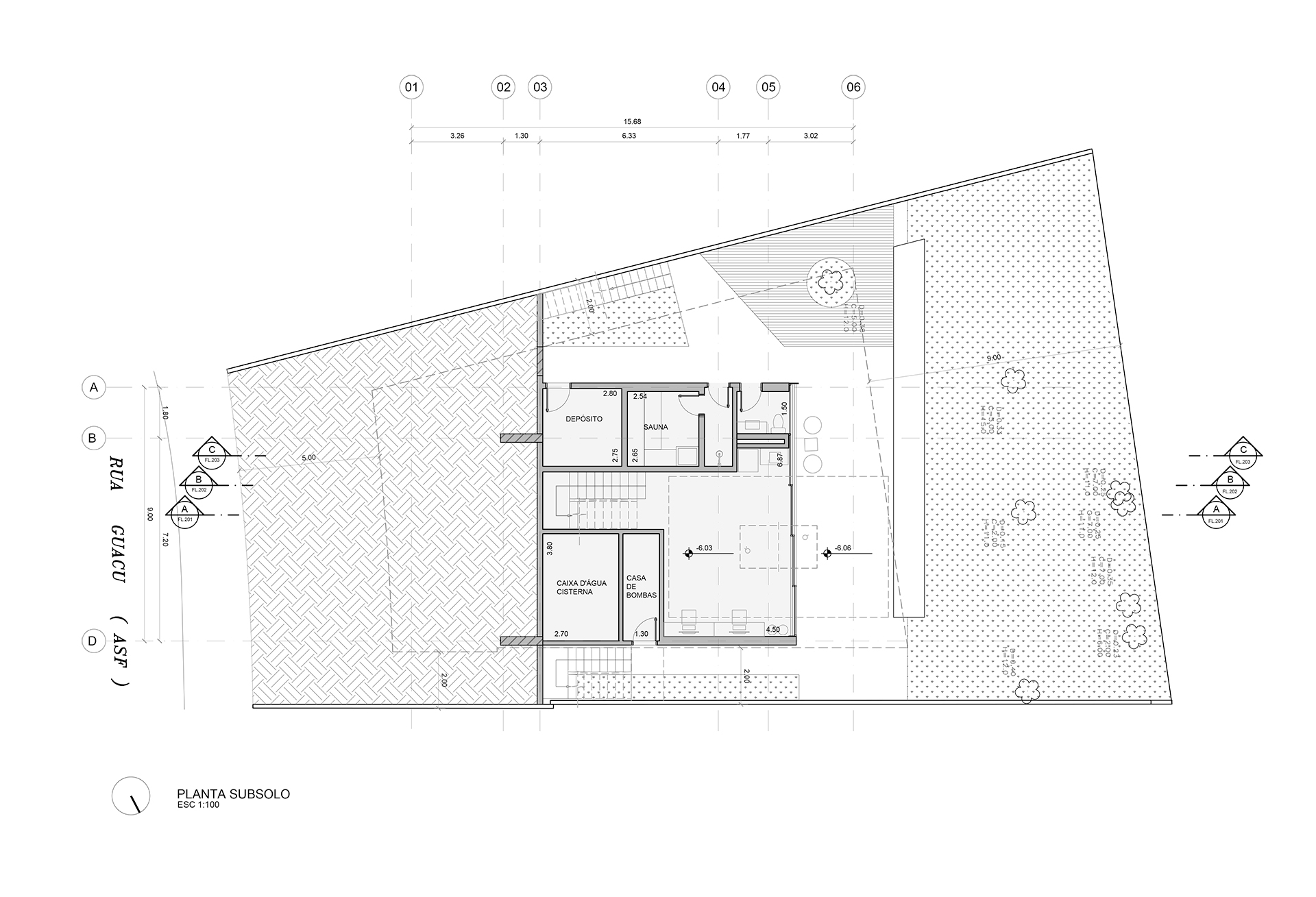
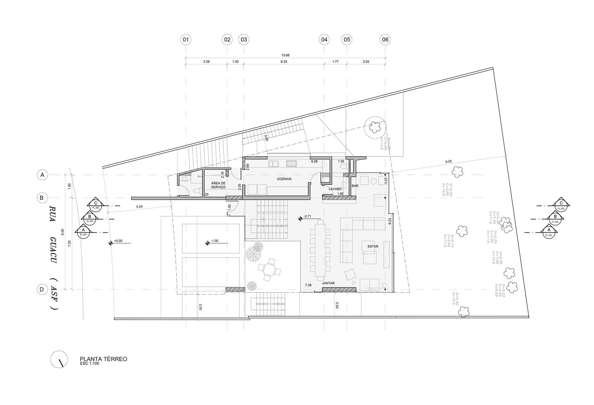
KA HOUSE
2023
LOCATION
Sumaré, SP – Brasil
AREA
360,00m²
Next project →